Woning Dingshof 4 Meteren

Dingshof 4, 4194AC Meteren

Ontvang updates voor Meteren - De Plantage

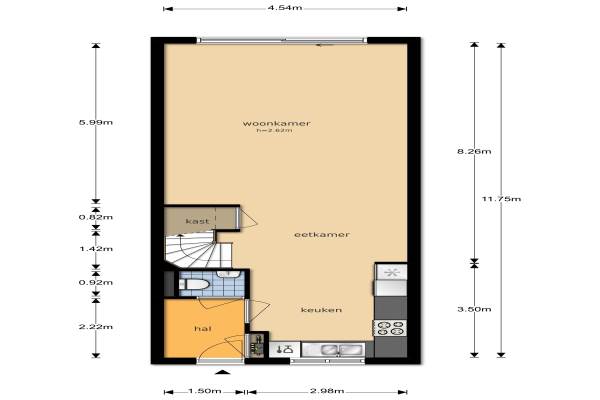
Het adres van deze woning uit 2013 is Dingshof 4 te Meteren. Het pand heeft een oppervlakte van 124m² en een perceeloppervlakte van 114m² en heeft 5 kamers kamers waarvan 3 slaapkamers. De geschatte waarde van deze woning is € 259.500.

Bekijk alle woningen in Meteren - De Plantage

Gegevens van Eengezinswoning, tussenwoning

Bouwjaar
2013
Geschatte waarde
€ 259.500
Oppervlakte
124 m2
Inhoud
443 m3
Aantal kamers
5 kamers
Slaapkamers
3
Badkamers
1 badkamer en 1 apart toilet
Soort bouw
Bestaande bouw
Eigendomssituatie
Volle eigendom
Ligging
Aan rustige weg en in woonwijk
Tuin
Achtertuin en voortuin
Achtertuin
35 m² (7m diep en 5m breed)

Voorzieningen in de buurt

Binnenkijken bij Dingshof 4 te Meteren

Meer meldingen in deze omgeving

Binnenkijken bij
Vrijdag 14-11-2025
Buitenhof 32, 4194AZ Meteren

Binnenkijken bij
Dinsdag 11-11-2025
De Vesting 30, 4194AR Meteren

Binnenkijken bij
Dinsdag 11-11-2025
De Binnenplaats 39, 4194AV Meteren

Binnenkijken bij
Dinsdag 11-11-2025
De Vesting 14, 4194AR Meteren

Binnenkijken bij
Woensdag 29-10-2025
De Binnenplaats 10, 4194AV Meteren

112 melding
Dinsdag 21-10-2025 om 00:55
Weergang, 4194AS Meteren

Nieuw bedrijf
Oktober 2025
De Binnenplaats 39, 4194AV Meteren

Binnenkijken bij
Donderdag 9-10-2025
Oosterhof 33, 4194AP Meteren

Direct een e-mail ontvangen bij nieuwe meldingen in deze regio?

Meld je dan GRATIS aan voor de Oozo Alert service voor Meteren - De Plantage

Instellen

Meer nieuws in Meteren - De Plantage

Weten hoe eenvoudig het is om af te vallen? Zonder pillen en smeersels en zonder je in het zweet te werken!
Kijk op eenvoudig-afvallen.nl

© 2012 - 2025 OOZO.nl - info@oozo.nl - Gegevens verwijderen? | Disclaimer | Privacy statement