Woning Noorderhof 35 Meteren

Noorderhof 35, 4194AB Meteren

Ontvang updates voor Meteren - De Plantage

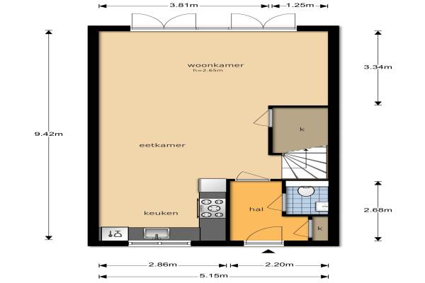
Het adres van deze woning uit 2015 is Noorderhof 35 te Meteren. Het pand heeft een oppervlakte van 138m² en een perceeloppervlakte van 145m² en heeft 6 kamers kamers waarvan 4 slaapkamers. De geschatte waarde van deze woning is € 292.500.

Bekijk alle woningen in Meteren - De Plantage

Gegevens van Eengezinswoning, tussenwoning

Bouwjaar
2015
Geschatte waarde
€ 292.500
Oppervlakte
138 m2
Inhoud
470 m3
Aantal kamers
6 kamers
Slaapkamers
4
Badkamers
1 badkamer en 1 apart toilet
Soort bouw
Bestaande bouw
Eigendomssituatie
Volle eigendom
Ligging
In woonwijk
Tuin
Achtertuin en voortuin

Voorzieningen in de buurt

Binnenkijken bij Noorderhof 35 te Meteren

Meer meldingen in deze omgeving

Binnenkijken bij
Vrijdag 14-11-2025
Buitenhof 32, 4194AZ Meteren

Binnenkijken bij
Dinsdag 11-11-2025
De Vesting 30, 4194AR Meteren

Binnenkijken bij
Dinsdag 11-11-2025
De Binnenplaats 39, 4194AV Meteren

Binnenkijken bij
Dinsdag 11-11-2025
De Vesting 14, 4194AR Meteren

Binnenkijken bij
Woensdag 29-10-2025
De Binnenplaats 10, 4194AV Meteren

112 melding
Dinsdag 21-10-2025 om 00:55
Weergang, 4194AS Meteren

Nieuw bedrijf
Oktober 2025
De Binnenplaats 39, 4194AV Meteren

Binnenkijken bij
Donderdag 9-10-2025
Oosterhof 33, 4194AP Meteren

Direct een e-mail ontvangen bij nieuwe meldingen in deze regio?

Meld je dan GRATIS aan voor de Oozo Alert service voor Meteren - De Plantage

Instellen

Meer nieuws in Meteren - De Plantage

Weten hoe eenvoudig het is om af te vallen? Zonder pillen en smeersels en zonder je in het zweet te werken!
Kijk op eenvoudig-afvallen.nl

© 2012 - 2025 OOZO.nl - info@oozo.nl - Gegevens verwijderen? | Disclaimer | Privacy statement