Woning Zaailand 19 Geldrop

Zaailand 19, 5663HJ Geldrop

Ontvang updates voor Zesgehuchten

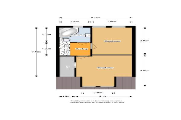
Het adres van deze woning uit 1989 is Zaailand 19 te Geldrop. Het pand heeft een oppervlakte van 110m² en een perceeloppervlakte van 250m² en heeft 5 kamers kamers waarvan 3 slaapkamers. De geschatte waarde van deze woning is € 309.000.

Bekijk alle woningen in Zesgehuchten

Gegevens van Eengezinswoning, 2-onder-1-kapwoning

Bouwjaar
1989
Geschatte waarde
€ 309.000
Oppervlakte
110 m2
Inhoud
400 m3
Aantal kamers
5 kamers
Slaapkamers
3
Badkamers
1 badkamer en 1 apart toilet
Soort bouw
Bestaande bouw
Eigendomssituatie
Volle eigendom
Ligging
Aan rustige weg en in woonwijk
Tuin
Achtertuin en voortuin
Achtertuin
99 m² (11m diep en 9m breed)

Voorzieningen in de buurt

Boodschappen0,5 km
Grote supermarkt1,0 km
Cafetaria0,6 km
Restaurant1,3 km
Huisarts0,6 km
Ziekenhuis1,7 km
Kinderdagverblijf0,5 km
BSO0,5 km
Alle voorzieningen in Zesgehuchten

Binnenkijken bij Zaailand 19 te Geldrop

Meer meldingen in deze omgeving

Nieuw bedrijf
Maart 2026
Emopad 37A, 5663PA Geldrop

Binnenkijken bij
Dinsdag 10-3-2026
Drossaardstraat 4, 5663ER Geldrop

112 melding
Maandag 9-3-2026 om 19:05
De Hooge Akker, 5661NG Geldrop

Nieuw bedrijf
Maart 2026
Diepe Vaart 28, 5663AX Geldrop

Binnenkijken bij
Zaterdag 7-3-2026
Paladijnstraat 24, 5663EN Geldrop

Binnenkijken bij
Donderdag 5-3-2026
Schoutstraat 23, 5663EX Geldrop

Faillissement
Woensdag 4-3-2026
de Hooge Akker 19, 5661NG Geldrop

112 melding
Vrijdag 27-2-2026 om 15:43
Gijzenrooiseweg, 5661MA Geldrop

Direct een e-mail ontvangen bij nieuwe meldingen in deze regio?

Meld je dan GRATIS aan voor de Oozo Alert service voor Zesgehuchten

Instellen

Meer nieuws in Zesgehuchten

Weten hoe eenvoudig het is om af te vallen? Zonder pillen en smeersels en zonder je in het zweet te werken!
Kijk op eenvoudig-afvallen.nl

© 2012 - 2026 OOZO.nl - info@oozo.nl - Gegevens verwijderen? | Disclaimer | Privacy statement