Woning Schout de Visscherestraat 13 Gemert

Schout de Visscherestraat 13, 5421GG Gemert

Ontvang updates voor Gemert-Oost

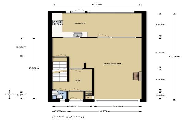
Het adres van deze woning uit 1955 is Schout de Visscherestraat 13 te Gemert. Het pand heeft een oppervlakte van 119m² en een perceeloppervlakte van 194m² en heeft 6 kamers kamers waarvan 4 slaapkamers. De geschatte waarde van deze woning is € 175.000.

Bekijk alle woningen in Gemert-Oost

Gegevens van Eengezinswoning, tussenwoning

Bouwjaar
1955
Geschatte waarde
€ 175.000
Oppervlakte
119 m2
Inhoud
438 m3
Aantal kamers
6 kamers
Slaapkamers
4
Badkamers
1 badkamer en 1 apart toilet
Soort bouw
Bestaande bouw
Eigendomssituatie
Volle eigendom
Ligging
Aan rustige weg en in woonwijk
Tuin
Achtertuin en voortuin
Achtertuin
62 m² (12m diep en 5,2m breed)

Voorzieningen in de buurt

Boodschappen0,8 km
Grote supermarkt0,9 km
Cafetaria0,5 km
Restaurant1,2 km
Huisarts1,1 km
Ziekenhuis1,3 km
Kinderdagverblijf0,5 km
BSO0,5 km
Alle voorzieningen in Gemert-Oost

Binnenkijken bij Schout de Visscherestraat 13 te Gemert

Meer meldingen in deze omgeving

Nieuw bedrijf
Mei 2026
Notaris van Kemenadestraat 15, 5421GM Gemert

112 melding
Donderdag 30-4-2026 om 18:47
Burgemeester de Bekkerlaan, 5421JM Gemert

Nieuw bedrijf
April 2026
Bunder 12, 5421AG Gemert

112 melding
Donderdag 23-4-2026 om 16:31
Dribbelheidseweg, 5421EH Gemert

112 melding
Donderdag 23-4-2026 om 16:14
Dribbelheidseweg, 5421EH Gemert

112 melding
Zondag 19-4-2026 om 20:12
Drossard Meijerstraat, Gemert

Binnenkijken bij
Donderdag 16-4-2026
Hurk 3, 5422CE Gemert

Binnenkijken bij
Maandag 13-4-2026
Wijst 22, 5422AT Gemert

Direct een e-mail ontvangen bij nieuwe meldingen in deze regio?

Meld je dan GRATIS aan voor de Oozo Alert service voor Gemert-Oost

Instellen

Meer nieuws in Gemert-Oost

Weten hoe eenvoudig het is om af te vallen? Zonder pillen en smeersels en zonder je in het zweet te werken!
Kijk op eenvoudig-afvallen.nl

© 2012 - 2026 OOZO.nl - info@oozo.nl - Gegevens verwijderen? | Disclaimer | Privacy statement