Woning Mudde 4 Gemert

Mudde 4, 5421AH Gemert

Ontvang updates voor Gemert-Oost

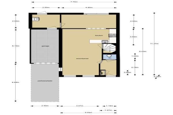
Het adres van deze woning uit 1991 is Mudde 4 te Gemert. Het pand heeft een oppervlakte van 123m² en een perceeloppervlakte van 236m² en heeft 6 kamers kamers waarvan 3 slaapkamers. De geschatte waarde van deze woning is € 263.500.

Bekijk alle woningen in Gemert-Oost

Gegevens van Eengezinswoning, 2-onder-1-kapwoning

Bouwjaar
1991
Geschatte waarde
€ 263.500
Oppervlakte
123 m2
Inhoud
426 m3
Aantal kamers
6 kamers
Slaapkamers
3
Badkamers
1 badkamer en 1 apart toilet
Soort bouw
Bestaande bouw
Eigendomssituatie
Volle eigendom
Ligging
Aan rustige weg en in woonwijk
Tuin
Achtertuin en voortuin
Achtertuin
104 m² (13m diep en 8m breed)

Voorzieningen in de buurt

Boodschappen0,8 km
Grote supermarkt0,9 km
Cafetaria0,5 km
Restaurant1,2 km
Huisarts1,1 km
Ziekenhuis1,3 km
Kinderdagverblijf0,5 km
BSO0,5 km
Alle voorzieningen in Gemert-Oost

Binnenkijken bij Mudde 4 te Gemert

Meer meldingen in deze omgeving

Binnenkijken bij
Dinsdag 5-5-2026
Kouter 43, 5422AA Gemert

Binnenkijken bij
Dinsdag 5-5-2026
Diederikstraat 58, 5421EX Gemert

Nieuw bedrijf
Mei 2026
Notaris van Kemenadestraat 15, 5421GM Gemert

112 melding
Donderdag 30-4-2026 om 18:47
Burgemeester de Bekkerlaan, 5421JM Gemert

Nieuw bedrijf
April 2026
Bunder 12, 5421AG Gemert

112 melding
Donderdag 23-4-2026 om 16:31
Dribbelheidseweg, 5421EH Gemert

112 melding
Donderdag 23-4-2026 om 16:14
Dribbelheidseweg, 5421EH Gemert

112 melding
Zondag 19-4-2026 om 20:12
Drossard Meijerstraat, Gemert

Direct een e-mail ontvangen bij nieuwe meldingen in deze regio?

Meld je dan GRATIS aan voor de Oozo Alert service voor Gemert-Oost

Instellen

Meer nieuws in Gemert-Oost

Weten hoe eenvoudig het is om af te vallen? Zonder pillen en smeersels en zonder je in het zweet te werken!
Kijk op eenvoudig-afvallen.nl

© 2012 - 2026 OOZO.nl - info@oozo.nl - Gegevens verwijderen? | Disclaimer | Privacy statement