Woning Duivenakkerstraat 29 Gennep

Duivenakkerstraat 29, 6591AW Gennep

Ontvang updates voor Midden

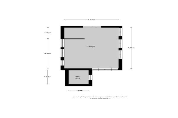
Het adres van deze woning uit 1935 is Duivenakkerstraat 29 te Gennep. Het pand heeft een oppervlakte van 75m² en een perceeloppervlakte van 400m² en heeft 3 kamers kamers waarvan 2 slaapkamers. De geschatte waarde van deze woning is € 149.000.

Bekijk alle woningen in Midden

Gegevens van Eengezinswoning, hoekwoning

Bouwjaar
1935
Geschatte waarde
€ 149.000
Oppervlakte
75 m2
Inhoud
356 m3
Aantal kamers
3 kamers
Slaapkamers
2
Badkamers
1 apart toilet
Soort bouw
Bestaande bouw
Eigendomssituatie
Volle eigendom
Ligging
In centrum
Tuin
Achtertuin
Achtertuin
150 m² (25m diep en 6m breed)

Voorzieningen in de buurt

Boodschappen0,6 km
Grote supermarkt0,6 km
Cafetaria0,3 km
Restaurant0,6 km
Huisarts0,8 km
Ziekenhuis6,7 km
Kinderdagverblijf0,4 km
BSO0,7 km
Alle voorzieningen in Midden

Binnenkijken bij Duivenakkerstraat 29 te Gennep

Meer meldingen in deze omgeving

112 melding
Woensdag 31-12-2025 om 18:33
Spoorstraat, Gennep

Nieuw bedrijf
December 2025
Groene kruisstraat 50, 6591GJ Gennep

Nieuw bedrijf
December 2025
Voorhoevepark 3, 6591AH Gennep

112 melding
Zaterdag 20-12-2025 om 13:50
Melkstraatje, 6591BP Gennep

112 melding
Zaterdag 20-12-2025 om 13:50
Melkstraatje, 6591BP Gennep

112 melding
Zaterdag 20-12-2025 om 13:43
Melkstraatje, 6591BP Gennep

Binnenkijken bij
Zaterdag 20-12-2025
Groene kruisstraat 34, 6591GJ Gennep

112 melding
Dinsdag 16-12-2025 om 23:29
Weverstraat, 6591AG Gennep

Direct een e-mail ontvangen bij nieuwe meldingen in deze regio?

Meld je dan GRATIS aan voor de Oozo Alert service voor Midden

Instellen

Meer nieuws in Midden

Weten hoe eenvoudig het is om af te vallen? Zonder pillen en smeersels en zonder je in het zweet te werken!
Kijk op eenvoudig-afvallen.nl

© 2012 - 2026 OOZO.nl - info@oozo.nl - Gegevens verwijderen? | Disclaimer | Privacy statement