Woning Heidehof 20 Gennep

Heidehof 20, 6591XE Gennep

Ontvang updates voor Zuid

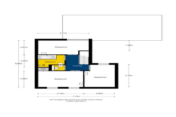
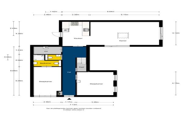
Het adres van deze woning uit 1981 is Heidehof 20 te Gennep. Het pand heeft een oppervlakte van 125m² en een perceeloppervlakte van 215m² en heeft 6 kamers kamers waarvan 5 slaapkamers. De geschatte waarde van deze woning is € 199.000.

Bekijk alle woningen in Zuid

Gegevens van Eengezinswoning, geschakelde woning

Bouwjaar
1981
Geschatte waarde
€ 199.000
Oppervlakte
125 m2
Inhoud
521 m3
Aantal kamers
6 kamers
Slaapkamers
5
Badkamers
2 badkamers en 2 aparte toiletten
Soort bouw
Bestaande bouw
Eigendomssituatie
Volle eigendom
Ligging
In woonwijk
Tuin
Achtertuin
Achtertuin
100 m² (10m diep en 10m breed)

Voorzieningen in de buurt

Boodschappen0,5 km
Grote supermarkt1,0 km
Cafetaria0,5 km
Restaurant1,1 km
Huisarts1,3 km
Ziekenhuis6,9 km
Kinderdagverblijf0,5 km
BSO0,5 km
Alle voorzieningen in Zuid

Binnenkijken bij Heidehof 20 te Gennep

Meer meldingen in deze omgeving

Nieuw bedrijf
December 2025
Dr.Poelsstraat 18, 6591ZB Gennep

Nieuw bedrijf
December 2025
Dr.Nolensstraat 20, 6591ZL Gennep

Nieuw bedrijf
December 2025
Seringenstraat 15, 6591SB Gennep

112 melding
Maandag 8-12-2025 om 09:38
Hezeland, 6591RX Gennep

Binnenkijken bij
Vrijdag 28-11-2025
Langeweg 80, 6591XZ Gennep

Nieuw bedrijf
November 2025
2e Dwarsweg 38, 6591XR Gennep

112 melding
Zondag 23-11-2025 om 15:35
Sneeuwheide, 6591RH Gennep

Binnenkijken bij
Vrijdag 14-11-2025
Norbertplein 16, 6591XA Gennep

Direct een e-mail ontvangen bij nieuwe meldingen in deze regio?

Meld je dan GRATIS aan voor de Oozo Alert service voor Zuid

Instellen

Meer nieuws in Zuid

Weten hoe eenvoudig het is om af te vallen? Zonder pillen en smeersels en zonder je in het zweet te werken!
Kijk op eenvoudig-afvallen.nl

© 2012 - 2025 OOZO.nl - info@oozo.nl - Gegevens verwijderen? | Disclaimer | Privacy statement