Woning Leeuwerikshof 19 Hoornaar

Leeuwerikshof 19, 4223ML Hoornaar

Ontvang updates voor Hoornaar-Nieuw

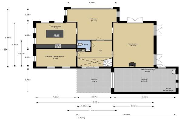
Het adres van deze woning uit 1995 is Leeuwerikshof 19 te Hoornaar. Het pand heeft een oppervlakte van 187m² en een perceeloppervlakte van 483m² en heeft 7 kamers kamers waarvan 6 slaapkamers. De geschatte waarde van deze woning is € 495.000.

Bekijk alle woningen in Hoornaar-Nieuw

Gegevens van Villa, vrijstaande woning

Bouwjaar
1995
Geschatte waarde
€ 495.000
Oppervlakte
187 m2
Inhoud
690 m3
Aantal kamers
7 kamers
Slaapkamers
6
Badkamers
1 badkamer en 1 apart toilet
Soort bouw
Bestaande bouw
Eigendomssituatie
Volle eigendom
Ligging
Aan rustige weg en in woonwijk
Tuin
Achtertuin
Achtertuin
169 m² (8,9m diep en 19m breed)

Voorzieningen in de buurt

Binnenkijken bij Leeuwerikshof 19 te Hoornaar

Meer meldingen in deze omgeving

112 melding
Donderdag 1-1-2026 om 03:47
Leeuwerikshof, 4223ML Hoornaar

112 melding
Donderdag 1-1-2026 om 03:25
Leeuwerikshof, 4223ML Hoornaar

112 melding
Dinsdag 16-12-2025 om 01:18
Giessenland, 4223MT Hoornaar

112 melding
Zondag 14-12-2025 om 22:12
Vissersland, 4223NP Hoornaar

112 melding
Vrijdag 12-12-2025 om 11:00
De zes molens, 4223SC Hoornaar

Nieuw bedrijf
December 2025
De Schans 106, 4223NX Hoornaar

Nieuw bedrijf
December 2025
De Schans 106, 4223NX Hoornaar

112 melding
Woensdag 10-12-2025 om 17:28
Leeuwerikshof, 4223ML Hoornaar

Direct een e-mail ontvangen bij nieuwe meldingen in deze regio?

Meld je dan GRATIS aan voor de Oozo Alert service voor Hoornaar-Nieuw

Instellen

Meer nieuws in Hoornaar-Nieuw

Weten hoe eenvoudig het is om af te vallen? Zonder pillen en smeersels en zonder je in het zweet te werken!
Kijk op eenvoudig-afvallen.nl

© 2012 - 2026 OOZO.nl - info@oozo.nl - Gegevens verwijderen? | Disclaimer | Privacy statement