Woning Giessenlaan 76 Giessenburg

Giessenlaan 76, 3381AM Giessenburg

Ontvang updates voor Giessenburg en Nieuwkerk

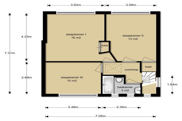
Het adres van deze woning uit 1957 is Giessenlaan 76 te Giessenburg. Het pand heeft een oppervlakte van 103m² en een perceeloppervlakte van 214m² en heeft 4 kamers kamers waarvan 3 slaapkamers. De geschatte waarde van deze woning is € 259.000.

Bekijk alle woningen in Giessenburg en Nieuwkerk

Gegevens van Eengezinswoning, 2-onder-1-kapwoning

Bouwjaar
1957
Geschatte waarde
€ 259.000
Oppervlakte
103 m2
Inhoud
335 m3
Aantal kamers
4 kamers
Slaapkamers
3
Badkamers
1 apart toilet
Soort bouw
Bestaande bouw
Eigendomssituatie
Volle eigendom
Ligging
In woonwijk
Tuin
Achtertuin, voortuin en zijtuin
Achtertuin
121 m² (13,6m diep en 8,9m breed)

Voorzieningen in de buurt

Binnenkijken bij Giessenlaan 76 te Giessenburg

Meer meldingen in deze omgeving

112 melding
Dinsdag 7-10-2025 om 19:42
Heul, 3381DC Giessenburg

112 melding
Zaterdag 4-10-2025 om 15:53
Kerkweg, 3381KJ Giessenburg

112 melding
Donderdag 2-10-2025 om 21:48
Kerkweg, 3381KJ Giessenburg

112 melding
Donderdag 2-10-2025 om 21:47
Kerkweg, 3381KJ Giessenburg

112 melding
Donderdag 2-10-2025 om 21:33
Kerkweg, 3381KJ Giessenburg

112 melding
Dinsdag 23-9-2025 om 18:11
Giessenlaan, 3381AK Giessenburg

112 melding
Dinsdag 23-9-2025 om 12:11
d'Ablaing van Giessenburgstraat, 3381CG Giessenburg

Binnenkijken bij
Dinsdag 23-9-2025
Arent van Gentstraat 12, 3381AA Giessenburg

Direct een e-mail ontvangen bij nieuwe meldingen in deze regio?

Meld je dan GRATIS aan voor de Oozo Alert service voor Giessenburg en Nieuwkerk

Instellen

Meer nieuws in Giessenburg en Nieuwkerk

Weten hoe eenvoudig het is om af te vallen? Zonder pillen en smeersels en zonder je in het zweet te werken!
Kijk op eenvoudig-afvallen.nl

© 2012 - 2025 OOZO.nl - info@oozo.nl - Gegevens verwijderen? | Disclaimer | Privacy statement