Woning Vingerling 21 Middelharnis

Vingerling 21, 3241EB Middelharnis

Ontvang updates voor Middelharnis westplaat

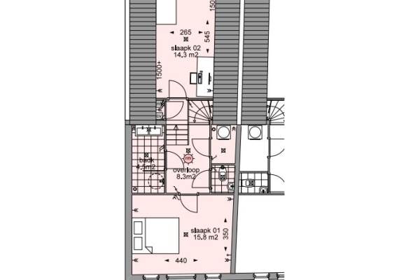
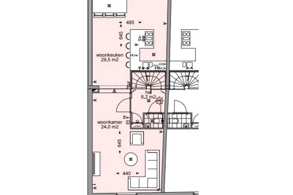
Het adres van deze woning uit 1723 is Vingerling 21 te Middelharnis. Het pand heeft een oppervlakte van 111m² en heeft 4 kamers kamers waarvan 2 slaapkamers. De geschatte waarde van deze woning is € 340.000.

Bekijk alle woningen in Middelharnis westplaat

Gegevens van Bovenwoning (appartement)

Bouwjaar
1723
Geschatte waarde
€ 340.000
Oppervlakte
111 m2
Inhoud
333 m3
Aantal kamers
4 kamers
Slaapkamers
2
Badkamers
1 badkamer en 1 apart toilet
Soort bouw
Bestaande bouw
Ligging
Aan water
Tuin
Zonneterras

Voorzieningen in de buurt

Boodschappen0,3 km
Grote supermarkt0,4 km
Cafetaria0,3 km
Restaurant0,6 km
Huisarts0,6 km
Ziekenhuis5,1 km
Kinderdagverblijf0,7 km
BSO0,8 km
Alle voorzieningen in Middelharnis westplaat

Binnenkijken bij Vingerling 21 te Middelharnis

Meer meldingen in deze omgeving

112 melding
Donderdag 27-11-2025 om 11:29
Nieuwepad, 3241CK Middelharnis

112 melding
Donderdag 27-11-2025 om 08:57
Anna Bijnspad, 3241DP Middelharnis

112 melding
Donderdag 27-11-2025 om 08:57
Anna Bijnspad, 3241DP Middelharnis

112 melding
Donderdag 27-11-2025 om 08:30
Gedempt Kanaal, Middelharnis

112 melding
Woensdag 26-11-2025 om 16:54
Nieuwepad, 3241CK Middelharnis

112 melding
Woensdag 26-11-2025 om 16:38
Nieuwepad, 3241CK Middelharnis

112 melding
Woensdag 26-11-2025 om 16:15
Gedempt Kanaal, Middelharnis

112 melding
Woensdag 26-11-2025 om 11:41
Nieuwdorp, 3241CJ Middelharnis

Direct een e-mail ontvangen bij nieuwe meldingen in deze regio?

Meld je dan GRATIS aan voor de Oozo Alert service voor Middelharnis westplaat

Instellen

Meer nieuws in Middelharnis westplaat

Weten hoe eenvoudig het is om af te vallen? Zonder pillen en smeersels en zonder je in het zweet te werken!
Kijk op eenvoudig-afvallen.nl

© 2012 - 2025 OOZO.nl - info@oozo.nl - Gegevens verwijderen? | Disclaimer | Privacy statement