Woning Hoogewei 8 Goes

Hoogewei 8, 4464AL Goes

Ontvang updates voor Goes-Noordoost

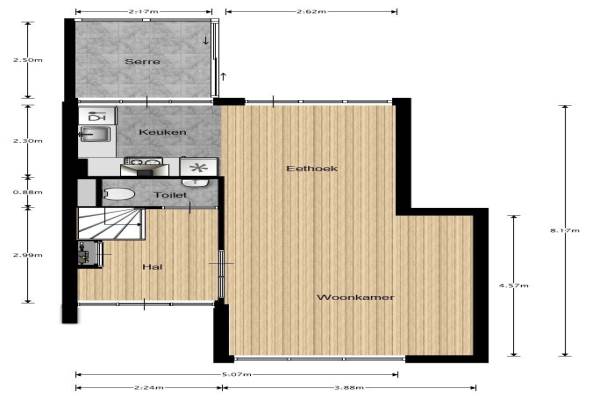
Het adres van deze woning uit 1979 is Hoogewei 8 te Goes. Het pand heeft een oppervlakte van 125m² en een perceeloppervlakte van 173m² en heeft 6 kamers kamers waarvan 4 slaapkamers. De geschatte waarde van deze woning is € 219.500.

Bekijk alle woningen in Goes-Noordoost

Gegevens van Eengezinswoning, tussenwoning

Bouwjaar
1979
Geschatte waarde
€ 219.500
Oppervlakte
125 m2
Inhoud
390 m3
Aantal kamers
6 kamers
Slaapkamers
4
Badkamers
1 badkamer
Soort bouw
Bestaande bouw
Ligging
Aan rustige weg en in woonwijk
Tuin
Voortuin en achtertuin
Achtertuin
75 m² (0,01m diep en 0,01m breed)

Voorzieningen in de buurt

Boodschappen1,5 km
Grote supermarkt1,6 km
Cafetaria1,4 km
Restaurant1,6 km
Huisarts1,4 km
Ziekenhuis3,9 km
Kinderdagverblijf1,1 km
BSO1,1 km
Alle voorzieningen in Goes-Noordoost

Binnenkijken bij Hoogewei 8 te Goes

Meer meldingen in deze omgeving

112 melding
Maandag 24-11-2025 om 14:04
Hornikswei, 4464AR Goes

112 melding
Maandag 24-11-2025 om 14:02
Hornikswei, 4464AR Goes

112 melding
Maandag 24-11-2025 om 13:58
Hornikswei, 4464AR Goes

112 melding
Maandag 24-11-2025 om 10:16
Middelmeet, 4464AZ Goes

112 melding
Vrijdag 21-11-2025 om 16:10
Langemeet, 4464BH Goes

112 melding
Vrijdag 21-11-2025 om 16:10
Langemeet, 4464BH Goes

112 melding
Vrijdag 21-11-2025 om 12:29
Langemeet, Goes

Nieuw bedrijf
November 2025
Sleutelkenswei 1, 4464BZ Goes

Direct een e-mail ontvangen bij nieuwe meldingen in deze regio?

Meld je dan GRATIS aan voor de Oozo Alert service voor Goes-Noordoost

Instellen

Meer nieuws in Goes-Noordoost

Weten hoe eenvoudig het is om af te vallen? Zonder pillen en smeersels en zonder je in het zweet te werken!
Kijk op eenvoudig-afvallen.nl

© 2012 - 2025 OOZO.nl - info@oozo.nl - Gegevens verwijderen? | Disclaimer | Privacy statement