Woning Bankven 67 Goirle

Bankven 67, 5052BB Goirle

Ontvang updates voor Vennen

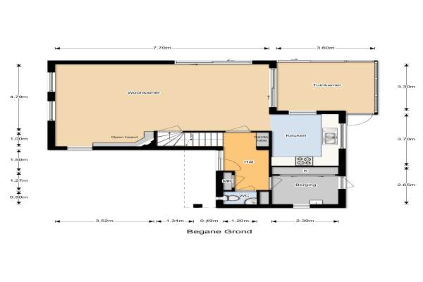
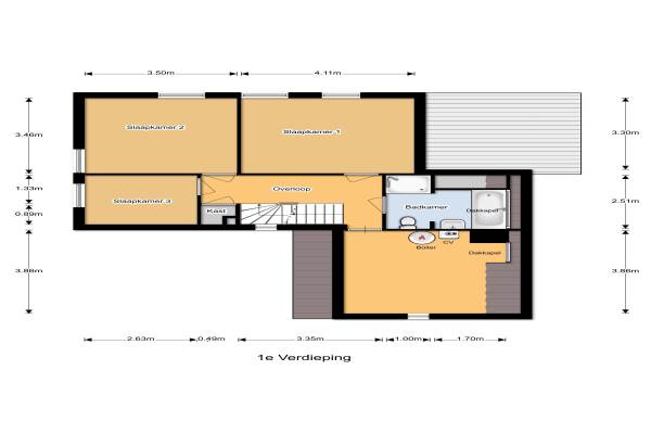
Het adres van deze woning uit 1981 is Bankven 67 te Goirle. Het pand heeft een oppervlakte van 190m² en een perceeloppervlakte van 535m² en heeft 9 kamers kamers waarvan 5 slaapkamers. De geschatte waarde van deze woning is € 495.000.

Bekijk alle woningen in Vennen

Gegevens van Eengezinswoning, vrijstaande woning

Bouwjaar
1981
Geschatte waarde
€ 495.000
Oppervlakte
190 m2
Inhoud
600 m3
Aantal kamers
9 kamers
Slaapkamers
5
Badkamers
1 apart toilet
Soort bouw
Bestaande bouw
Eigendomssituatie
Volle eigendom
Tuin
Achtertuin, voortuin, zijtuin en tuin rondom
Achtertuin
225 m² (15m diep en 15m breed)

Voorzieningen in de buurt

Boodschappen0,3 km
Grote supermarkt1,4 km
Cafetaria0,3 km
Restaurant1,1 km
Huisarts0,3 km
Ziekenhuis4,7 km
Kinderdagverblijf0,3 km
BSO0,3 km
Alle voorzieningen in Vennen

Binnenkijken bij Bankven 67 te Goirle

Meer meldingen in deze omgeving

112 melding
Vrijdag 6-3-2026 om 13:11
Frankische Driehoek, 5052BL Goirle

112 melding
Donderdag 5-3-2026 om 22:05
De Dieze, 5052TP Goirle

112 melding
Donderdag 5-3-2026 om 17:53
Bankven, 5052BD Goirle

112 melding
Donderdag 5-3-2026 om 17:53
Bankven, 5052BD Goirle

112 melding
Donderdag 5-3-2026 om 17:53
Bankven, 5052BD Goirle

112 melding
Donderdag 5-3-2026 om 12:26
Frankische Driehoek, Goirle

112 melding
Donderdag 5-3-2026 om 12:26
Frankische Driehoek, Goirle

112 melding
Woensdag 4-3-2026 om 17:02
Wit Hollandven, 5052 Goirle

Direct een e-mail ontvangen bij nieuwe meldingen in deze regio?

Meld je dan GRATIS aan voor de Oozo Alert service voor Vennen

Instellen

Meer nieuws in Vennen

Weten hoe eenvoudig het is om af te vallen? Zonder pillen en smeersels en zonder je in het zweet te werken!
Kijk op eenvoudig-afvallen.nl

© 2012 - 2026 OOZO.nl - info@oozo.nl - Gegevens verwijderen? | Disclaimer | Privacy statement