Woning Burgemeester Philipsenstraat 29 Goirle

Burgemeester Philipsenstraat 29, 5051CP Goirle

Ontvang updates voor Burgemeesters

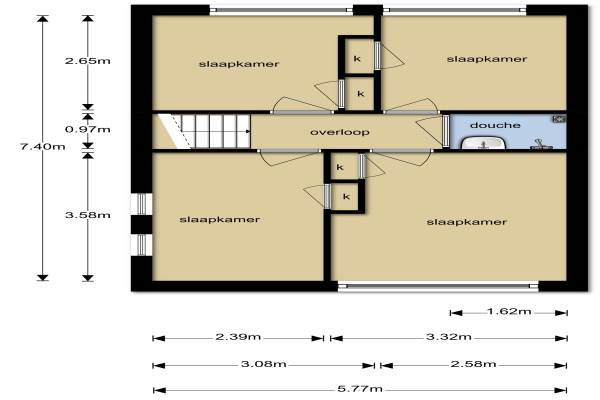
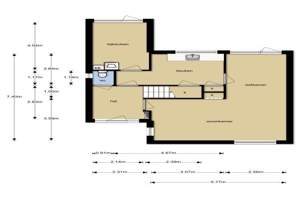
Het adres van deze woning uit 1960 is Burgemeester Philipsenstraat 29 te Goirle. Het pand heeft een oppervlakte van 104m² en een perceeloppervlakte van 260m² en heeft 5 kamers kamers waarvan 4 slaapkamers. De geschatte waarde van deze woning is € 195.000.

Bekijk alle woningen in Burgemeesters

Gegevens van Eengezinswoning, 2-onder-1-kapwoning

Bouwjaar
1960
Geschatte waarde
€ 195.000
Oppervlakte
104 m2
Inhoud
370 m3
Aantal kamers
5 kamers
Slaapkamers
4
Badkamers
1 badkamer en 1 apart toilet
Soort bouw
Bestaande bouw
Eigendomssituatie
Volle eigendom
Ligging
In centrum en in woonwijk
Tuin
Achtertuin en voortuin
Achtertuin
125 m² (14m diep en 10m breed)

Voorzieningen in de buurt

Boodschappen0,3 km
Grote supermarkt0,7 km
Cafetaria0,4 km
Restaurant0,4 km
Huisarts0,8 km
Ziekenhuis4,2 km
Kinderdagverblijf0,5 km
BSO0,3 km
Alle voorzieningen in Burgemeesters

Binnenkijken bij Burgemeester Philipsenstraat 29 te Goirle

Meer meldingen in deze omgeving

112 melding
Vrijdag 7-11-2025 om 09:19
Van Hessen Kasselstraat, 5051CG Goirle

112 melding
Donderdag 6-11-2025 om 16:25
Tilburgseweg, 5051AK Goirle

112 melding
Woensdag 5-11-2025 om 13:25
Van Hessen Kasselstraat, 5051CG Goirle

112 melding
Woensdag 5-11-2025 om 08:45
Van Malsenstraat, 5051CC Goirle

112 melding
Woensdag 5-11-2025 om 08:45
Van Malsenstraat, 5051CC Goirle

112 melding
Maandag 3-11-2025 om 15:35
5051AK Goirle

112 melding
Maandag 3-11-2025 om 15:35
5051AK Goirle

112 melding
Maandag 3-11-2025 om 15:32
Van Hessen Kasselstraat, 5051CG Goirle

Direct een e-mail ontvangen bij nieuwe meldingen in deze regio?

Meld je dan GRATIS aan voor de Oozo Alert service voor Burgemeesters

Instellen

Meer nieuws in Burgemeesters

Weten hoe eenvoudig het is om af te vallen? Zonder pillen en smeersels en zonder je in het zweet te werken!
Kijk op eenvoudig-afvallen.nl

© 2012 - 2025 OOZO.nl - info@oozo.nl - Gegevens verwijderen? | Disclaimer | Privacy statement