Woning Nieuwe Rielseweg 19 Goirle

Nieuwe Rielseweg 19, 5051CW Goirle

Ontvang updates voor Burgemeesters

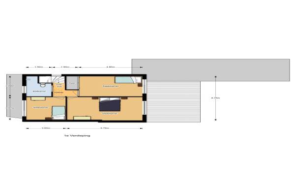
Het adres van deze woning uit 1963 is Nieuwe Rielseweg 19 te Goirle. Het pand heeft een oppervlakte van 145m² en een perceeloppervlakte van 383m² en heeft 5 kamers kamers waarvan 3 slaapkamers. De geschatte waarde van deze woning is € 339.000.

Bekijk alle woningen in Burgemeesters

Gegevens van Eengezinswoning, 2-onder-1-kapwoning

Bouwjaar
1963
Geschatte waarde
€ 339.000
Oppervlakte
145 m2
Inhoud
647 m3
Aantal kamers
5 kamers
Slaapkamers
3
Badkamers
1 badkamer en 1 apart toilet
Soort bouw
Bestaande bouw
Eigendomssituatie
Volle eigendom
Ligging
In woonwijk
Tuin
Achtertuin en voortuin
Achtertuin
144 m² (18m diep en 8m breed)

Voorzieningen in de buurt

Boodschappen0,3 km
Grote supermarkt0,7 km
Cafetaria0,4 km
Restaurant0,4 km
Huisarts0,8 km
Ziekenhuis4,2 km
Kinderdagverblijf0,5 km
BSO0,3 km
Alle voorzieningen in Burgemeesters

Binnenkijken bij Nieuwe Rielseweg 19 te Goirle

Meer meldingen in deze omgeving

112 melding
Vrijdag 8-5-2026 om 09:27
Burgemeester Rensstraat, Goirle

112 melding
Donderdag 7-5-2026 om 15:53
Burgemeester Rensstraat, Goirle

112 melding
Woensdag 6-5-2026 om 11:15
Burgemeester Rensstraat, 5051CM Goirle

112 melding
Woensdag 6-5-2026 om 11:15
Burgemeester Rensstraat, 5051CM Goirle

112 melding
Woensdag 6-5-2026 om 09:50
Tilburgseweg, 5051AK Goirle

112 melding
Dinsdag 5-5-2026 om 14:06
Burgemeester Rensstraat, Goirle

112 melding
Maandag 4-5-2026 om 14:00
Burgemeester Rensstraat, 5051CM Goirle

112 melding
Maandag 4-5-2026 om 12:58
Tilburgseweg, 5051AK Goirle

Direct een e-mail ontvangen bij nieuwe meldingen in deze regio?

Meld je dan GRATIS aan voor de Oozo Alert service voor Burgemeesters

Instellen

Meer nieuws in Burgemeesters

Weten hoe eenvoudig het is om af te vallen? Zonder pillen en smeersels en zonder je in het zweet te werken!
Kijk op eenvoudig-afvallen.nl

© 2012 - 2026 OOZO.nl - info@oozo.nl - Gegevens verwijderen? | Disclaimer | Privacy statement