Woning Burgemeester Voskensstraat 5 Goirle

Burgemeester Voskensstraat 5, 5051CT Goirle

Ontvang updates voor Burgemeesters

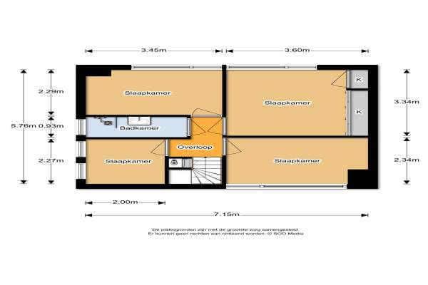
Het adres van deze woning uit 1959 is Burgemeester Voskensstraat 5 te Goirle. Het pand heeft een oppervlakte van 100m² en een perceeloppervlakte van 332m² en heeft 6 kamers kamers waarvan 4 slaapkamers. De geschatte waarde van deze woning is € 300.000.

Bekijk alle woningen in Burgemeesters

Gegevens van Eengezinswoning, hoekwoning

Bouwjaar
1959
Geschatte waarde
€ 300.000
Oppervlakte
100 m2
Inhoud
370 m3
Aantal kamers
6 kamers
Slaapkamers
4
Badkamers
1 badkamer en 1 apart toilet
Soort bouw
Bestaande bouw
Eigendomssituatie
Volle eigendom
Ligging
Aan rustige weg, beschutte ligging, in woonwijk en vrij uitzicht
Tuin
Achtertuin, voortuin en zijtuin
Achtertuin
175 m² (17,5m diep en 10m breed)

Voorzieningen in de buurt

Boodschappen0,3 km
Grote supermarkt0,7 km
Cafetaria0,4 km
Restaurant0,4 km
Huisarts0,8 km
Ziekenhuis4,2 km
Kinderdagverblijf0,5 km
BSO0,3 km
Alle voorzieningen in Burgemeesters

Binnenkijken bij Burgemeester Voskensstraat 5 te Goirle

Meer meldingen in deze omgeving

112 melding
Vrijdag 5-12-2025 om 11:05
Burgemeester van Gorpstraat, 5051CV Goirle

112 melding
Donderdag 4-12-2025 om 08:36
Burgemeester van Gorpstraat, 5051CV Goirle

112 melding
Donderdag 4-12-2025 om 08:36
Burgemeester van Gorpstraat, 5051CV Goirle

Binnenkijken bij
Woensdag 3-12-2025
Burgemeester Rensstraat 38, 5051CN Goirle

112 melding
Donderdag 27-11-2025 om 09:48
Burgemeester Rensstraat, 5051CM Goirle

112 melding
Dinsdag 25-11-2025 om 14:46
Burgemeester Rensstraat, 5051CM Goirle

112 melding
Dinsdag 25-11-2025 om 14:46
Burgemeester Rensstraat, 5051CM Goirle

112 melding
Woensdag 19-11-2025 om 22:28
Burgemeester Rensstraat, 5051CN Goirle

Direct een e-mail ontvangen bij nieuwe meldingen in deze regio?

Meld je dan GRATIS aan voor de Oozo Alert service voor Burgemeesters

Instellen

Meer nieuws in Burgemeesters

Weten hoe eenvoudig het is om af te vallen? Zonder pillen en smeersels en zonder je in het zweet te werken!
Kijk op eenvoudig-afvallen.nl

© 2012 - 2025 OOZO.nl - info@oozo.nl - Gegevens verwijderen? | Disclaimer | Privacy statement