Woning Meulenwiekelaan 66 Bussum

Meulenwiekelaan 66, 1402TE Bussum

Ontvang updates voor Batterijlaan

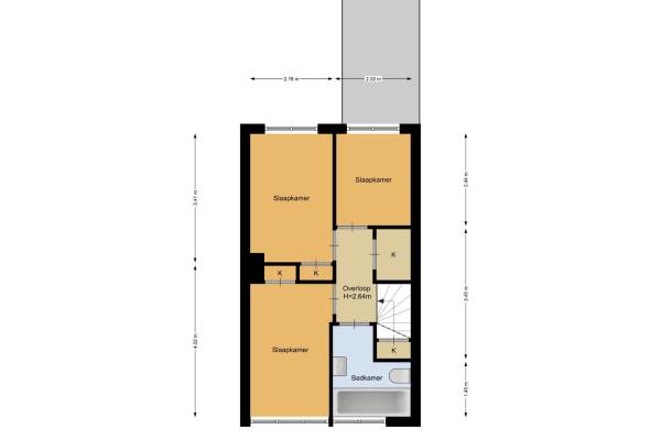
Het adres van deze woning uit 1924 is Meulenwiekelaan 66 te Bussum. Het pand heeft een oppervlakte van 70m² en een perceeloppervlakte van 87m² en heeft 4 kamers kamers waarvan 3 slaapkamers. De geschatte waarde van deze woning is € 395.000.

Bekijk alle woningen in Batterijlaan

Gegevens van Eengezinswoning, tussenwoning

Bouwjaar
1924
Geschatte waarde
€ 395.000
Oppervlakte
70 m2
Inhoud
271 m3
Aantal kamers
4 kamers
Slaapkamers
3
Badkamers
1 badkamer en 1 apart toilet
Soort bouw
Bestaande bouw
Ligging
Aan rustige weg en in woonwijk
Tuin
Achtertuin en voortuin

Voorzieningen in de buurt

Boodschappen0,2 km
Grote supermarkt0,3 km
Cafetaria0,2 km
Restaurant0,2 km
Huisarts0,8 km
Ziekenhuis3,2 km
Kinderdagverblijf0,3 km
BSO0,3 km
Alle voorzieningen in Batterijlaan

Binnenkijken bij Meulenwiekelaan 66 te Bussum

Meer meldingen in deze omgeving

Binnenkijken bij
Vrijdag 14-11-2025
Badhuislaan 35, 1402SR Bussum

Nieuw bedrijf
November 2025
Voormeulenweg 41, 1402TH Bussum

Binnenkijken bij
Dinsdag 11-11-2025
Sint Janslaan 67, 1402LN Bussum

Binnenkijken bij
Dinsdag 11-11-2025
Achtermeulenlaan 27, 1402SW Bussum

Binnenkijken bij
Dinsdag 11-11-2025
Prinses Beatrixplantsoen 48, 1402TS Bussum

Binnenkijken bij
Dinsdag 11-11-2025
Achtermeulenlaan 2A1, 1402SZ Bussum

Binnenkijken bij
Dinsdag 11-11-2025
Badhuislaan 14, 1402ST Bussum

Binnenkijken bij
Dinsdag 11-11-2025
Badhuislaan 3, 1402SP Bussum

Direct een e-mail ontvangen bij nieuwe meldingen in deze regio?

Meld je dan GRATIS aan voor de Oozo Alert service voor Batterijlaan

Instellen

Meer nieuws in Batterijlaan

Weten hoe eenvoudig het is om af te vallen? Zonder pillen en smeersels en zonder je in het zweet te werken!
Kijk op eenvoudig-afvallen.nl

© 2012 - 2025 OOZO.nl - info@oozo.nl - Gegevens verwijderen? | Disclaimer | Privacy statement