Woning Bijlstraat 31 Bussum

Bijlstraat 31, 1402PJ Bussum

Ontvang updates voor Bijlstraat

Het adres van deze woning is Bijlstraat 31 te Bussum. Het pand heeft een oppervlakte van 70m² en een perceeloppervlakte van 93m² en heeft 4 kamers kamers waarvan 2 slaapkamers. De geschatte waarde van deze woning is € 249.000.

Bekijk alle woningen in Bijlstraat

Gegevens van Eengezinswoning, hoekwoning

Bouwjaar
Voor 1906
Geschatte waarde
€ 249.000
Oppervlakte
70 m2
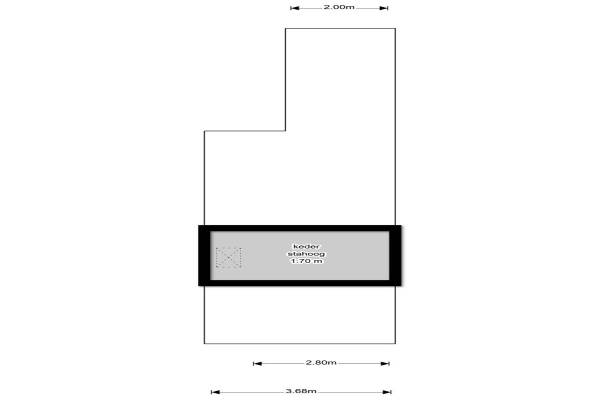
Inhoud
243 m3
Aantal kamers
4 kamers
Slaapkamers
2
Badkamers
1 badkamer en 1 apart toilet
Soort bouw
Bestaande bouw
Eigendomssituatie
Volle eigendom
Ligging
Aan rustige weg en in woonwijk
Tuin
Achtertuin en voortuin
Achtertuin
18 m² (4,5m diep en 4m breed)

Voorzieningen in de buurt

Boodschappen0,3 km
Grote supermarkt0,5 km
Cafetaria0,2 km
Restaurant0,3 km
Huisarts0,8 km
Ziekenhuis3,2 km
Kinderdagverblijf0,3 km
BSO0,4 km
Alle voorzieningen in Bijlstraat

Binnenkijken bij Bijlstraat 31 te Bussum

Meer meldingen in deze omgeving

Nieuw bedrijf
November 2025
Hamerstraat 37, 1402PR Bussum

112 melding
Maandag 24-11-2025 om 12:49
Koopweg, Bussum

Binnenkijken bij
Dinsdag 18-11-2025
Bijlstraat 48, 1402PM Bussum

Nieuw bedrijf
November 2025
Sint Janslaan 111, 1402LR Bussum

112 melding
Zondag 2-11-2025 om 15:06
Eendrachtpark, Bussum

Binnenkijken bij
Donderdag 30-10-2025
Bijlstraat 21, 1402PH Bussum

Binnenkijken bij
Donderdag 9-10-2025
dr. Abraham Kuyperlaan 4, 1402SC Bussum

Binnenkijken bij
Donderdag 9-10-2025
Bremstraat 15, 1402BD Bussum

Direct een e-mail ontvangen bij nieuwe meldingen in deze regio?

Meld je dan GRATIS aan voor de Oozo Alert service voor Bijlstraat

Instellen

Meer nieuws in Bijlstraat

Weten hoe eenvoudig het is om af te vallen? Zonder pillen en smeersels en zonder je in het zweet te werken!
Kijk op eenvoudig-afvallen.nl

© 2012 - 2025 OOZO.nl - info@oozo.nl - Gegevens verwijderen? | Disclaimer | Privacy statement