Woning Herenstraat 74 Bussum

Herenstraat 74, 1406PJ Bussum

Ontvang updates voor Spiegelzicht

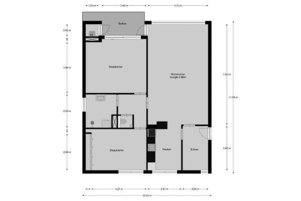
Het adres van deze woning uit 1974 is Herenstraat 74 te Bussum. Het pand heeft een oppervlakte van 103m² en heeft 3 kamers kamers waarvan 2 slaapkamers. De geschatte waarde van deze woning is € 525.000.

Bekijk alle woningen in Spiegelzicht

Gegevens van Portiekflat (appartement)

Bouwjaar
1974
Geschatte waarde
€ 525.000
Oppervlakte
103 m2
Inhoud
348 m3
Aantal kamers
3 kamers
Slaapkamers
2
Badkamers
1 badkamer en 1 apart toilet
Soort bouw
Bestaande bouw
Eigendomssituatie
Volle eigendom
Ligging
Beschutte ligging en in woonwijk

Voorzieningen in de buurt

Boodschappen0,3 km
Grote supermarkt0,7 km
Cafetaria0,2 km
Restaurant0,2 km
Huisarts0,6 km
Ziekenhuis4,3 km
Kinderdagverblijf0,4 km
BSO0,3 km
Alle voorzieningen in Spiegelzicht

Binnenkijken bij Herenstraat 74 te Bussum

Meer meldingen in deze omgeving

Onroerend goed
Woensdag 29-10-2025
Herenstraat 61, 1406PA Bussum

Nieuw bedrijf
Oktober 2025
Bensdorpplein 12, 1406PZ Bussum

Nieuw bedrijf
Oktober 2025
Bensdorpplein 12, 1406PZ Bussum

Binnenkijken bij
Zaterdag 11-10-2025
Nieuwe Spiegelstraat 10, 1406SH Bussum

Binnenkijken bij
Vrijdag 10-10-2025
Melkweg 9, 1406PM Bussum

Binnenkijken bij
Donderdag 9-10-2025
Iepenlaan 28, 1406PW Bussum

Binnenkijken bij
Donderdag 9-10-2025
Herenstraat 59, 1406PA Bussum

Binnenkijken bij
Donderdag 2-10-2025
Herenstraat 149, 1406PD Bussum

Direct een e-mail ontvangen bij nieuwe meldingen in deze regio?

Meld je dan GRATIS aan voor de Oozo Alert service voor Spiegelzicht

Instellen

Meer nieuws in Spiegelzicht

Weten hoe eenvoudig het is om af te vallen? Zonder pillen en smeersels en zonder je in het zweet te werken!
Kijk op eenvoudig-afvallen.nl

© 2012 - 2025 OOZO.nl - info@oozo.nl - Gegevens verwijderen? | Disclaimer | Privacy statement