Woning Melkweg 6B Bussum

Melkweg 6B, 1406PN Bussum

Ontvang updates voor Spiegelzicht

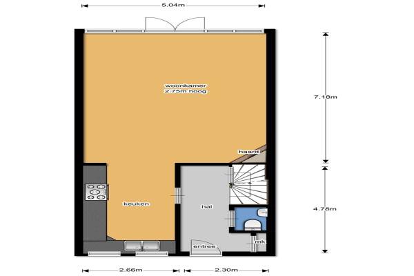
Het adres van deze woning uit 2000 is Melkweg 6B te Bussum. Het pand heeft een oppervlakte van 168m² en een perceeloppervlakte van 110m² en heeft 4 kamers kamers waarvan 3 slaapkamers. De geschatte waarde van deze woning is € 435.000.

Bekijk alle woningen in Spiegelzicht

Gegevens van Eengezinswoning, 2-onder-1-kapwoning

Bouwjaar
2000
Geschatte waarde
€ 435.000
Oppervlakte
168 m2
Inhoud
640 m3
Aantal kamers
4 kamers
Slaapkamers
3
Badkamers
2 badkamers en 1 apart toilet
Soort bouw
Bestaande bouw
Eigendomssituatie
Volle eigendom
Ligging
Aan rustige weg, beschutte ligging en in woonwijk
Tuin
Voortuin en patio/atrium

Voorzieningen in de buurt

Boodschappen0,3 km
Grote supermarkt0,7 km
Cafetaria0,2 km
Restaurant0,2 km
Huisarts0,6 km
Ziekenhuis4,3 km
Kinderdagverblijf0,4 km
BSO0,3 km
Alle voorzieningen in Spiegelzicht

Binnenkijken bij Melkweg 6B te Bussum

Meer meldingen in deze omgeving

Binnenkijken bij
Dinsdag 11-11-2025
Herenstraat 59, 1406PA Bussum

Nieuw bedrijf
November 2025
Beerensteinerlaan 3C, 1406NM Bussum

Nieuw bedrijf
November 2025
Willemslaan 1K, 1406LS Bussum

Onroerend goed
Woensdag 29-10-2025
Herenstraat 61, 1406PA Bussum

Nieuw bedrijf
Oktober 2025
Bensdorpplein 12, 1406PZ Bussum

Nieuw bedrijf
Oktober 2025
Bensdorpplein 12, 1406PZ Bussum

Binnenkijken bij
Zaterdag 11-10-2025
Nieuwe Spiegelstraat 10, 1406SH Bussum

Binnenkijken bij
Vrijdag 10-10-2025
Melkweg 9, 1406PM Bussum

Direct een e-mail ontvangen bij nieuwe meldingen in deze regio?

Meld je dan GRATIS aan voor de Oozo Alert service voor Spiegelzicht

Instellen

Meer nieuws in Spiegelzicht

Weten hoe eenvoudig het is om af te vallen? Zonder pillen en smeersels en zonder je in het zweet te werken!
Kijk op eenvoudig-afvallen.nl

© 2012 - 2025 OOZO.nl - info@oozo.nl - Gegevens verwijderen? | Disclaimer | Privacy statement