Woning De Clinge 8 Bussum

De Clinge 8, 1401EV Bussum

Ontvang updates voor Verbindingslaan

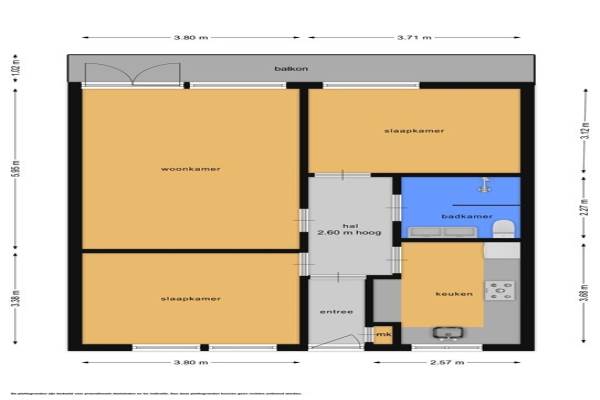
Het adres van deze woning uit 1968 is De Clinge 8 te Bussum. Het pand heeft een oppervlakte van 72m² en een perceeloppervlakte van 1051m² en heeft 3 kamers kamers waarvan 2 slaapkamers. De geschatte waarde van deze woning is € 325.000.

Bekijk alle woningen in Verbindingslaan

Gegevens van Appartement

Bouwjaar
1968
Geschatte waarde
€ 325.000
Oppervlakte
72 m2
Inhoud
240 m3
Aantal kamers
3 kamers
Slaapkamers
2
Badkamers
1 badkamer
Soort bouw
Bestaande bouw
Ligging
In centrum

Voorzieningen in de buurt

Boodschappen0,2 km
Grote supermarkt0,2 km
Cafetaria0,2 km
Restaurant0,1 km
Huisarts0,8 km
Ziekenhuis3,5 km
Kinderdagverblijf0,2 km
BSO0,5 km
Alle voorzieningen in Verbindingslaan

Binnenkijken bij De Clinge 8 te Bussum

Meer meldingen in deze omgeving

Binnenkijken bij
Donderdag 5-2-2026
Visserstraat 32, 1401SZ Bussum

Binnenkijken bij
Woensdag 21-1-2026
Verbindingslaan 5A, 1401VB Bussum

Nieuw bedrijf
Januari 2026
Poststraat 3, 1401EX Bussum

Binnenkijken bij
Zaterdag 3-1-2026
De Clinge 14, 1401EV Bussum

Faillissement
Woensdag 31-12-2025
Visserstraat 38A, 1401SZ Bussum

Nieuw bedrijf
December 2025
Poststraat 6B, 1401EZ BUSSUM

Onroerend goed
Vrijdag 12-12-2025
Huizerweg 47, 1401GH Bussum

Binnenkijken bij
Woensdag 10-12-2025
Huizerweg 49B, 1401GH Bussum

Direct een e-mail ontvangen bij nieuwe meldingen in deze regio?

Meld je dan GRATIS aan voor de Oozo Alert service voor Verbindingslaan

Instellen

Meer nieuws in Verbindingslaan

Weten hoe eenvoudig het is om af te vallen? Zonder pillen en smeersels en zonder je in het zweet te werken!
Kijk op eenvoudig-afvallen.nl

© 2012 - 2026 OOZO.nl - info@oozo.nl - Gegevens verwijderen? | Disclaimer | Privacy statement