Woning Zwaluwlaan 172 Bussum

Zwaluwlaan 172, 1403BM Bussum

Ontvang updates voor Ooster Eng-Noord

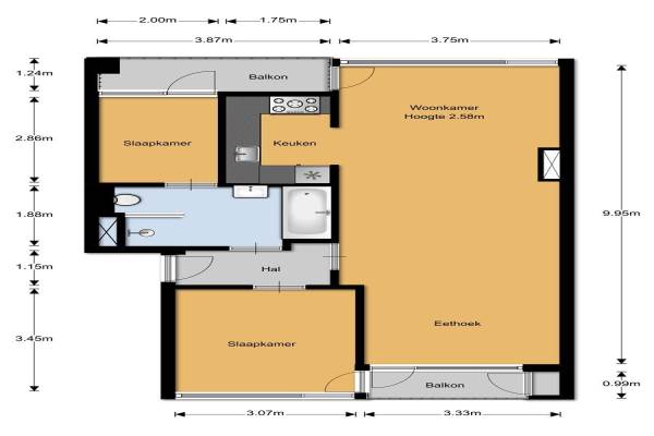
Het adres van deze woning uit 1962 is Zwaluwlaan 172 te Bussum. Het pand heeft een oppervlakte van 70m² en heeft 3 kamers kamers waarvan 2 slaapkamers. De geschatte waarde van deze woning is € 195.000.

Bekijk alle woningen in Ooster Eng-Noord

Gegevens van Portiekflat

Bouwjaar
1962
Geschatte waarde
€ 195.000
Oppervlakte
70 m2
Inhoud
226 m3
Aantal kamers
3 kamers
Slaapkamers
2
Badkamers
1 badkamer
Soort bouw
Bestaande bouw
Eigendomssituatie
Volle eigendom
Ligging
In woonwijk

Voorzieningen in de buurt

Boodschappen0,5 km
Grote supermarkt0,5 km
Cafetaria1,2 km
Restaurant1,6 km
Huisarts0,4 km
Ziekenhuis1,8 km
Kinderdagverblijf0,4 km
BSO0,4 km
Alle voorzieningen in Ooster Eng-Noord

Binnenkijken bij Zwaluwlaan 172 te Bussum

Meer meldingen in deze omgeving

Binnenkijken bij
Donderdag 9-10-2025
Merelhof 19, 1403CS Bussum

Binnenkijken bij
Donderdag 9-10-2025
Leeuweriklaan 129, 1403CN Bussum

Nieuw bedrijf
Oktober 2025
Koekoeklaan 7, 1403EB Bussum

Nieuw bedrijf
Oktober 2025
Leeuweriklaan 139, 1403CP Bussum

Nieuw bedrijf
Oktober 2025
Zwaluwlaan 102, 1403BL Bussum

Binnenkijken bij
Donderdag 2-10-2025
Zwaluwlaan 150, 1403BM Bussum

Binnenkijken bij
Zondag 28-9-2025
Zwaluwlaan 111, 1403BH Bussum

Binnenkijken bij
Donderdag 25-9-2025
Lijsterlaan 177, 1403AT Bussum

Direct een e-mail ontvangen bij nieuwe meldingen in deze regio?

Meld je dan GRATIS aan voor de Oozo Alert service voor Ooster Eng-Noord

Instellen

Meer nieuws in Ooster Eng-Noord

Weten hoe eenvoudig het is om af te vallen? Zonder pillen en smeersels en zonder je in het zweet te werken!
Kijk op eenvoudig-afvallen.nl

© 2012 - 2025 OOZO.nl - info@oozo.nl - Gegevens verwijderen? | Disclaimer | Privacy statement