Woning Claudiagaarde 78 Bussum

Claudiagaarde 78, 1403JS Bussum

Ontvang updates voor Ooster Eng-Zuid

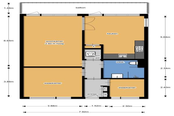
Het adres van deze woning is Claudiagaarde 78 te Bussum. Het pand heeft een oppervlakte van 83m² en heeft 3 kamers kamers waarvan 2 slaapkamers. De geschatte waarde van deze woning is € 239.000.

Bekijk alle woningen in Ooster Eng-Zuid

Gegevens van Galerijflat

Geschatte waarde
€ 239.000
Oppervlakte
83 m2
Inhoud
274 m3
Aantal kamers
3 kamers
Slaapkamers
2
Soort bouw
Bestaande bouw
Eigendomssituatie
Volle eigendom
Ligging
Aan bosrand en aan rustige weg

Voorzieningen in de buurt

Boodschappen0,5 km
Grote supermarkt0,5 km
Cafetaria0,9 km
Restaurant1,7 km
Huisarts0,4 km
Ziekenhuis1,9 km
Kinderdagverblijf0,3 km
BSO0,3 km
Alle voorzieningen in Ooster Eng-Zuid

Binnenkijken bij Claudiagaarde 78 te Bussum

Meer meldingen in deze omgeving

Binnenkijken bij
Dinsdag 11-11-2025
Barbaragaarde 14, 1403JL Bussum

Binnenkijken bij
Dinsdag 11-11-2025
Cornelia de Langelaan 30, 1403GH Bussum

Nieuw bedrijf
November 2025
Aaltje Noordewierlaan 18, 1403JC Bussum

Nieuw bedrijf
Oktober 2025
Aaltje Noordewierlaan 72, 1403JE Bussum

Nieuw bedrijf
Oktober 2025
Aagje Dekenlaan 211, 1403HG Bussum

Binnenkijken bij
Woensdag 29-10-2025
Anne Franklaan 32, 1403HR Bussum

Nieuw bedrijf
Oktober 2025
Anne Franklaan 58, 1403HS Bussum

Nieuw bedrijf
Oktober 2025
Roodborstlaan 6, 1403EL Bussum

Direct een e-mail ontvangen bij nieuwe meldingen in deze regio?

Meld je dan GRATIS aan voor de Oozo Alert service voor Ooster Eng-Zuid

Instellen

Meer nieuws in Ooster Eng-Zuid

Weten hoe eenvoudig het is om af te vallen? Zonder pillen en smeersels en zonder je in het zweet te werken!
Kijk op eenvoudig-afvallen.nl

© 2012 - 2025 OOZO.nl - info@oozo.nl - Gegevens verwijderen? | Disclaimer | Privacy statement