Woning Augusta de Witlaan 10 Bussum

Augusta de Witlaan 10, 1403GM Bussum

Ontvang updates voor Ooster Eng-Zuid

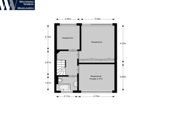
Het adres van deze woning uit 1962 is Augusta de Witlaan 10 te Bussum. Het pand heeft een oppervlakte van 133m² en een perceeloppervlakte van 210m² en heeft 6 kamers kamers waarvan 5 slaapkamers. De geschatte waarde van deze woning is € 339.500.

Bekijk alle woningen in Ooster Eng-Zuid

Gegevens van Eengezinswoning, tussenwoning

Bouwjaar
1962
Geschatte waarde
€ 339.500
Oppervlakte
133 m2
Inhoud
443 m3
Aantal kamers
6 kamers
Slaapkamers
5
Badkamers
2 badkamers en 1 apart toilet
Soort bouw
Bestaande bouw
Eigendomssituatie
Volle eigendom
Ligging
Aan rustige weg, in woonwijk en vrij uitzicht
Tuin
Achtertuin en voortuin
Achtertuin
90 m² (15m diep en 6m breed)

Voorzieningen in de buurt

Boodschappen0,5 km
Grote supermarkt0,5 km
Cafetaria0,9 km
Restaurant1,7 km
Huisarts0,4 km
Ziekenhuis1,9 km
Kinderdagverblijf0,3 km
BSO0,3 km
Alle voorzieningen in Ooster Eng-Zuid

Binnenkijken bij Augusta de Witlaan 10 te Bussum

Meer meldingen in deze omgeving

Binnenkijken bij
Zaterdag 6-12-2025
Top Naefflaan 71, 1403EZ Bussum

Nieuw bedrijf
November 2025
Top Naefflaan 36, 1403GA Bussum

Binnenkijken bij
Vrijdag 21-11-2025
Amaliagaarde 24, 1403JH Bussum

Binnenkijken bij
Dinsdag 11-11-2025
Barbaragaarde 14, 1403JL Bussum

Binnenkijken bij
Dinsdag 11-11-2025
Cornelia de Langelaan 30, 1403GH Bussum

Nieuw bedrijf
November 2025
Aaltje Noordewierlaan 18, 1403JC Bussum

Nieuw bedrijf
Oktober 2025
Aaltje Noordewierlaan 72, 1403JE Bussum

Nieuw bedrijf
Oktober 2025
Aagje Dekenlaan 211, 1403HG Bussum

Direct een e-mail ontvangen bij nieuwe meldingen in deze regio?

Meld je dan GRATIS aan voor de Oozo Alert service voor Ooster Eng-Zuid

Instellen

Meer nieuws in Ooster Eng-Zuid

Weten hoe eenvoudig het is om af te vallen? Zonder pillen en smeersels en zonder je in het zweet te werken!
Kijk op eenvoudig-afvallen.nl

© 2012 - 2025 OOZO.nl - info@oozo.nl - Gegevens verwijderen? | Disclaimer | Privacy statement