Woning Aaltje Noordewierlaan 22 Bussum

Aaltje Noordewierlaan 22, 1403JC Bussum

Ontvang updates voor Ooster Eng-Zuid

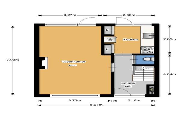
Het adres van deze woning uit 1959 is Aaltje Noordewierlaan 22 te Bussum. Het pand heeft een oppervlakte van 104m² en een perceeloppervlakte van 171m² en heeft 5 kamers kamers waarvan 4 slaapkamers. De geschatte waarde van deze woning is € 299.500.

Bekijk alle woningen in Ooster Eng-Zuid

Gegevens van Eengezinswoning, tussenwoning

Bouwjaar
1959
Geschatte waarde
€ 299.500
Oppervlakte
104 m2
Inhoud
349 m3
Aantal kamers
5 kamers
Slaapkamers
4
Badkamers
1 badkamer en 1 apart toilet
Soort bouw
Bestaande bouw
Eigendomssituatie
Volle eigendom
Ligging
In woonwijk
Tuin
Achtertuin en voortuin
Achtertuin
66 m² (12m diep en 5,5m breed)

Voorzieningen in de buurt

Boodschappen0,5 km
Grote supermarkt0,5 km
Cafetaria0,9 km
Restaurant1,7 km
Huisarts0,4 km
Ziekenhuis1,9 km
Kinderdagverblijf0,3 km
BSO0,3 km
Alle voorzieningen in Ooster Eng-Zuid

Binnenkijken bij Aaltje Noordewierlaan 22 te Bussum

Meer meldingen in deze omgeving

Binnenkijken bij
Zaterdag 7-2-2026
Top Naefflaan 54, 1403GB Bussum

Binnenkijken bij
Zaterdag 7-2-2026
Aagje Dekenlaan 28, 1403HH Bussum

Binnenkijken bij
Zondag 1-2-2026
Barbaragaarde 29, 1403JK Bussum

Nieuw bedrijf
Januari 2026
Betje Wolfflaan 105, 1403GS Bussum

Nieuw bedrijf
Januari 2026
Aaltje Noordewierlaan 26, 1403JC Bussum

112 melding
Zaterdag 24-1-2026 om 18:39
Aaltje Noordewierlaan, Bussum

112 melding
Zaterdag 24-1-2026 om 13:45
Aaltje Noordewierlaan, Bussum

112 melding
Zaterdag 24-1-2026 om 13:36
Aaltje Noordewierlaan, Bussum

Direct een e-mail ontvangen bij nieuwe meldingen in deze regio?

Meld je dan GRATIS aan voor de Oozo Alert service voor Ooster Eng-Zuid

Instellen

Meer nieuws in Ooster Eng-Zuid

Weten hoe eenvoudig het is om af te vallen? Zonder pillen en smeersels en zonder je in het zweet te werken!
Kijk op eenvoudig-afvallen.nl

© 2012 - 2026 OOZO.nl - info@oozo.nl - Gegevens verwijderen? | Disclaimer | Privacy statement