Woning Anne Franklaan 110 Bussum

Anne Franklaan 110, 1403HT Bussum

Ontvang updates voor Ooster Eng-Zuid

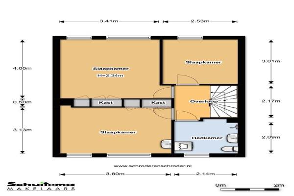
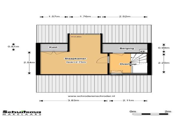
Het adres van deze woning is Anne Franklaan 110 te Bussum. Het pand heeft een oppervlakte van 116m² en een perceeloppervlakte van 161m² en heeft 5 kamers kamers waarvan 4 slaapkamers. De geschatte waarde van deze woning is € 300.000.

Bekijk alle woningen in Ooster Eng-Zuid

Gegevens van Eengezinswoning, tussenwoning

Geschatte waarde
€ 300.000
Oppervlakte
116 m2
Inhoud
386 m3
Aantal kamers
5 kamers
Slaapkamers
4
Badkamers
1 badkamer en 1 apart toilet
Soort bouw
Bestaande bouw
Eigendomssituatie
Volle eigendom
Ligging
Aan rustige weg en in woonwijk
Tuin
Achtertuin en voortuin
Achtertuin
66 m² (11m diep en 6m breed)

Voorzieningen in de buurt

Boodschappen0,5 km
Grote supermarkt0,5 km
Cafetaria0,9 km
Restaurant1,7 km
Huisarts0,4 km
Ziekenhuis1,9 km
Kinderdagverblijf0,3 km
BSO0,3 km
Alle voorzieningen in Ooster Eng-Zuid

Binnenkijken bij Anne Franklaan 110 te Bussum

Meer meldingen in deze omgeving

Binnenkijken bij
Woensdag 1-4-2026
Claudiagaarde 56, 1403JR Bussum

Binnenkijken bij
Woensdag 1-4-2026
Dorotheagaarde 70, 1403JW Bussum

Binnenkijken bij
Zondag 29-3-2026
Barbaragaarde 54, 1403JM Bussum

Nieuw bedrijf
Maart 2026
Elisabethgaarde 80, 1403KC Bussum

Nieuw bedrijf
Maart 2026
Roodborstlaan 6, 1403EL Bussum

Nieuw bedrijf
Maart 2026
Aaltje Noordewierlaan 60, 1403JE Bussum

Binnenkijken bij
Zaterdag 14-3-2026
Anne Franklaan 146, 1403HV Bussum

Binnenkijken bij
Donderdag 5-3-2026
Claudiagaarde 35, 1403JN Bussum

Direct een e-mail ontvangen bij nieuwe meldingen in deze regio?

Meld je dan GRATIS aan voor de Oozo Alert service voor Ooster Eng-Zuid

Instellen

Meer nieuws in Ooster Eng-Zuid

Weten hoe eenvoudig het is om af te vallen? Zonder pillen en smeersels en zonder je in het zweet te werken!
Kijk op eenvoudig-afvallen.nl

© 2012 - 2026 OOZO.nl - info@oozo.nl - Gegevens verwijderen? | Disclaimer | Privacy statement