Woning Schepenen 76 Naarden

Schepenen 76, 1412DH Naarden

Ontvang updates voor De Fortlanden

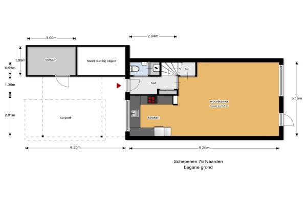
Het adres van deze woning uit 1989 is Schepenen 76 te Naarden. Het pand heeft een oppervlakte van 110m² en een perceeloppervlakte van 168m² en heeft 4 kamers kamers waarvan 3 slaapkamers. De geschatte waarde van deze woning is € 465.000.

Bekijk alle woningen in De Fortlanden

Gegevens van Eengezinswoning, hoekwoning

Bouwjaar
1989
Geschatte waarde
€ 465.000
Oppervlakte
110 m2
Inhoud
377 m3
Aantal kamers
4 kamers
Slaapkamers
3
Badkamers
1 badkamer en 1 apart toilet
Soort bouw
Bestaande bouw
Eigendomssituatie
Volle eigendom
Ligging
Aan rustige weg, beschutte ligging en in woonwijk
Tuin
Achtertuin en voortuin
Achtertuin
72 m² (13m diep en 5,5m breed)

Voorzieningen in de buurt

Boodschappen0,5 km
Grote supermarkt0,5 km
Cafetaria0,5 km
Restaurant1,4 km
Huisarts0,7 km
Ziekenhuis5,7 km
Kinderdagverblijf0,4 km
BSO0,7 km
Alle voorzieningen in De Fortlanden

Binnenkijken bij Schepenen 76 te Naarden

Meer meldingen in deze omgeving

Binnenkijken bij
Woensdag 18-3-2026
Schepenen 60, 1412DH Naarden

Binnenkijken bij
Maandag 9-2-2026
Cort van der Lindenlaan 17, 1412BW Naarden

Binnenkijken bij
Zondag 1-2-2026
Baljuw 21, 1412DJ Naarden

Nieuw bedrijf
Januari 2026
Heemraad 49, 1412DN Naarden

Nieuw bedrijf
December 2025
Cort van der Lindenlaan 13, 1412BW Naarden

Binnenkijken bij
Zondag 21-12-2025
Schout 24, 1412NG Naarden

Binnenkijken bij
Zaterdag 13-12-2025
Drossaard 15, 1412NR Naarden

Binnenkijken bij
Woensdag 29-10-2025
Heemraad 11, 1412DM Naarden

Direct een e-mail ontvangen bij nieuwe meldingen in deze regio?

Meld je dan GRATIS aan voor de Oozo Alert service voor De Fortlanden

Instellen

Meer nieuws in De Fortlanden

Weten hoe eenvoudig het is om af te vallen? Zonder pillen en smeersels en zonder je in het zweet te werken!
Kijk op eenvoudig-afvallen.nl

© 2012 - 2026 OOZO.nl - info@oozo.nl - Gegevens verwijderen? | Disclaimer | Privacy statement