Woning Johan Willem Frisolaan 52 Naarden

Johan Willem Frisolaan 52, 1412AJ Naarden

Ontvang updates voor Naardermeerkwartier

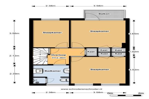
Het adres van deze woning uit 1970 is Johan Willem Frisolaan 52 te Naarden. Het pand heeft een oppervlakte van 133m² en een perceeloppervlakte van 333m² en heeft 6 kamers kamers waarvan 5 slaapkamers. De geschatte waarde van deze woning is € 449.000.

Bekijk alle woningen in Naardermeerkwartier

Gegevens van Eengezinswoning, hoekwoning

Bouwjaar
1970
Geschatte waarde
€ 449.000
Oppervlakte
133 m2
Inhoud
442 m3
Aantal kamers
6 kamers
Slaapkamers
5
Badkamers
1 badkamer en 1 apart toilet
Soort bouw
Bestaande bouw
Eigendomssituatie
Volle eigendom
Ligging
Aan rustige weg, aan water, in woonwijk en vrij uitzicht
Tuin
Achtertuin, voortuin en zijtuin
Achtertuin
171 m² (19m diep en 9m breed)

Voorzieningen in de buurt

Boodschappen0,5 km
Grote supermarkt0,6 km
Cafetaria0,6 km
Restaurant1,3 km
Huisarts0,4 km
Ziekenhuis5,4 km
Kinderdagverblijf0,4 km
BSO0,9 km
Alle voorzieningen in Naardermeerkwartier

Binnenkijken bij Johan Willem Frisolaan 52 te Naarden

Meer meldingen in deze omgeving

Binnenkijken bij
Zondag 11-1-2026
Anna Paulownalaan 7, 1412AK Naarden

Nieuw bedrijf
December 2025
Graaf Willem de Oudelaan 235, 1412AT Naarden

Faillissement
Donderdag 11-12-2025
Graaf Willem de Oudelaan 123, 1412AR Naarden

Binnenkijken bij
Vrijdag 14-11-2025
Anna Paulownalaan 11, 1412AK Naarden

Binnenkijken bij
Dinsdag 11-11-2025
Graaf Willem de Oudelaan 177, 1412AR Naarden

Nieuw bedrijf
November 2025
Graaf Willem de Oudelaan 97, 1412AR Naarden

Binnenkijken bij
Maandag 22-9-2025
Graaf Willem de Oudelaan 102, 1412AW Naarden

Binnenkijken bij
Vrijdag 19-9-2025
Graaf Willem de Oudelaan 201, 1412AS Naarden

Direct een e-mail ontvangen bij nieuwe meldingen in deze regio?

Meld je dan GRATIS aan voor de Oozo Alert service voor Naardermeerkwartier

Instellen

Meer nieuws in Naardermeerkwartier

Weten hoe eenvoudig het is om af te vallen? Zonder pillen en smeersels en zonder je in het zweet te werken!
Kijk op eenvoudig-afvallen.nl

© 2012 - 2026 OOZO.nl - info@oozo.nl - Gegevens verwijderen? | Disclaimer | Privacy statement