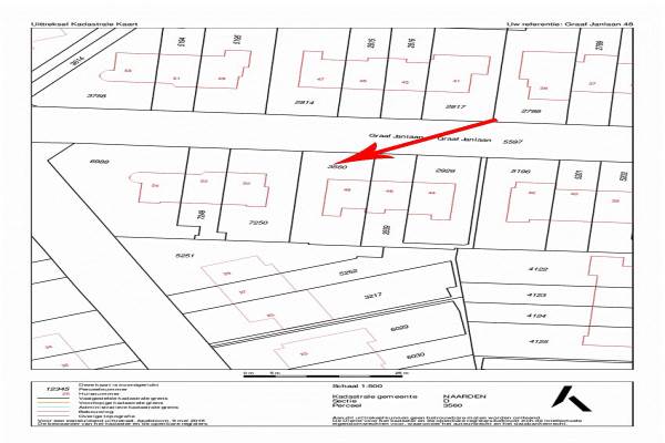
Woning Graaf Janlaan 48 Naarden

Graaf Janlaan 48, 1412GH Naarden

Ontvang updates voor Oranje Nassaupark-Zuid

Het adres van deze woning uit 1937 is Graaf Janlaan 48 te Naarden. Het pand heeft een oppervlakte van 151m² en een perceeloppervlakte van 344m² en heeft 5 kamers kamers waarvan 4 slaapkamers. De geschatte waarde van deze woning is € 747.500.

Bekijk alle woningen in Oranje Nassaupark-Zuid

Gegevens van Eengezinswoning, hoekwoning

Bouwjaar
1937
Geschatte waarde
€ 747.500
Oppervlakte
151 m2
Inhoud
602 m3
Aantal kamers
5 kamers
Slaapkamers
4
Badkamers
1 badkamer en 1 apart toilet
Soort bouw
Bestaande bouw
Eigendomssituatie
Volle eigendom
Ligging
Aan rustige weg, beschutte ligging en in woonwijk
Tuin
Achtertuin, voortuin, zijtuin en zonneterras
Achtertuin
138 m² (12m diep en 11,5m breed)

Voorzieningen in de buurt

Boodschappen0,5 km
Grote supermarkt0,9 km
Cafetaria0,6 km
Restaurant0,6 km
Huisarts0,4 km
Ziekenhuis4,8 km
Kinderdagverblijf0,5 km
BSO0,6 km
Alle voorzieningen in Oranje Nassaupark-Zuid

Binnenkijken bij Graaf Janlaan 48 te Naarden

Meer meldingen in deze omgeving

Binnenkijken bij
Dinsdag 5-5-2026
Juliana van Stolberglaan 26, 1412BH Naarden

112 melding
Zondag 3-5-2026 om 12:55
Pater Wijnterlaan, Naarden

Nieuw bedrijf
Mei 2026
Julianalaan 20, 1412GS Naarden

112 melding
Zaterdag 11-4-2026 om 06:59
Burgemeester van Hasseltlaan, 1412GN Naarden

Binnenkijken bij
Zondag 29-3-2026
Wethouder Königlaan 29, 1412GT Naarden

Nieuw bedrijf
Maart 2026
Prins Willem van Oranjelaan 21, 1412GJ Naarden

Nieuw bedrijf
Maart 2026
Prins Willem van Oranjelaan 21, 1412GJ Naarden

Binnenkijken bij
Zaterdag 14-3-2026
Wethouder Königlaan 8, 1412GT Naarden

Direct een e-mail ontvangen bij nieuwe meldingen in deze regio?

Meld je dan GRATIS aan voor de Oozo Alert service voor Oranje Nassaupark-Zuid

Instellen

Meer nieuws in Oranje Nassaupark-Zuid

Weten hoe eenvoudig het is om af te vallen? Zonder pillen en smeersels en zonder je in het zweet te werken!
Kijk op eenvoudig-afvallen.nl

© 2012 - 2026 OOZO.nl - info@oozo.nl - Gegevens verwijderen? | Disclaimer | Privacy statement