Woning Statenlaan 11 Bussum

Statenlaan 11, 1405ET Bussum

Ontvang updates voor Boslaan

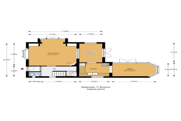
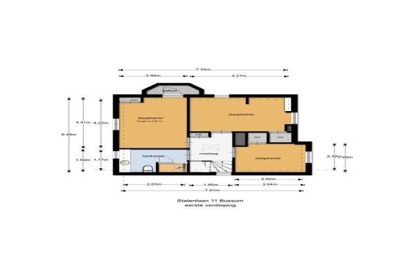
Het adres van deze woning uit 1923 is Statenlaan 11 te Bussum. Het pand heeft 6 kamers kamers waarvan 3 slaapkamers. De geschatte waarde van deze woning is € 800.000.

Bekijk alle woningen in Boslaan

Gegevens van Villa, vrijstaande woning

Bouwjaar
1923
Geschatte waarde
€ 800.000
Oppervlakte
0 m2
Inhoud
501 m3
Aantal kamers
6 kamers
Slaapkamers
3
Badkamers
1 badkamer en 1 apart toilet
Soort bouw
Bestaande bouw
Eigendomssituatie
Volle eigendom
Ligging
Aan rustige weg, beschutte ligging en in woonwijk
Tuin
Tuin rondom

Voorzieningen in de buurt

Boodschappen0,8 km
Grote supermarkt1,0 km
Cafetaria0,8 km
Restaurant0,8 km
Huisarts1,0 km
Ziekenhuis5,0 km
Kinderdagverblijf0,7 km
BSO0,5 km
Alle voorzieningen in Boslaan

Binnenkijken bij Statenlaan 11 te Bussum

Meer meldingen in deze omgeving

Binnenkijken bij
Dinsdag 25-11-2025
Meerweg 55, 1405BD Bussum

Nieuw bedrijf
November 2025
Koningin Emmalaan 24, 1405CL Bussum

Binnenkijken bij
Dinsdag 18-11-2025
Prinses Marielaan 7, 1405EN Bussum

112 melding
Zondag 16-11-2025 om 12:41
Prinses Marielaan, Bussum

112 melding
Zondag 16-11-2025 om 12:41
Prinses Marielaan, Bussum

Binnenkijken bij
Zondag 16-11-2025
Regentesselaan 21, 1405EH Bussum

Nieuw bedrijf
November 2025
Boslaan 10, 1405CB Bussum

Binnenkijken bij
Dinsdag 11-11-2025
Statenlaan 5, 1405ET Bussum

Direct een e-mail ontvangen bij nieuwe meldingen in deze regio?

Meld je dan GRATIS aan voor de Oozo Alert service voor Boslaan

Instellen

Meer nieuws in Boslaan

Weten hoe eenvoudig het is om af te vallen? Zonder pillen en smeersels en zonder je in het zweet te werken!
Kijk op eenvoudig-afvallen.nl

© 2012 - 2025 OOZO.nl - info@oozo.nl - Gegevens verwijderen? | Disclaimer | Privacy statement