Woning Verlengde Pompstraat 3 Gorinchem

Verlengde Pompstraat 3, 4201GX Gorinchem

Ontvang updates voor Benedenstad

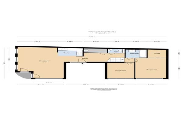
Het adres van deze woning uit 2007 is Verlengde Pompstraat 3 te Gorinchem. Het pand heeft een oppervlakte van 84m² en heeft 3 kamers kamers waarvan 2 slaapkamers. De geschatte waarde van deze woning is € 347.500.

Bekijk alle woningen in Benedenstad

Gegevens van Appartement

Bouwjaar
2007
Geschatte waarde
€ 347.500
Oppervlakte
84 m2
Inhoud
276 m3
Aantal kamers
3 kamers
Slaapkamers
2
Badkamers
1 badkamer en 1 apart toilet
Soort bouw
Bestaande bouw
Eigendomssituatie
Volle eigendom
Ligging
In centrum

Voorzieningen in de buurt

Boodschappen0,1 km
Grote supermarkt0,2 km
Cafetaria0,1 km
Restaurant0,1 km
Huisarts0,6 km
Ziekenhuis1,9 km
Kinderdagverblijf0,3 km
BSO0,3 km
Alle voorzieningen in Benedenstad

Binnenkijken bij Verlengde Pompstraat 3 te Gorinchem

Meer meldingen in deze omgeving

112 melding
Zaterdag 7-3-2026 om 11:39
Hoge Torenstraat, 4201GC Gorinchem

112 melding
Zaterdag 7-3-2026 om 01:30
Verlengde Pompstraat, 4201GZ Gorinchem

112 melding
Vrijdag 6-3-2026 om 15:22
Buiten de Waterpoort, 4201CS Gorinchem

112 melding
Vrijdag 6-3-2026 om 15:22
Buiten de Waterpoort, 4201CS Gorinchem

112 melding
Vrijdag 6-3-2026 om 14:59
Wilhelminaplein, 4201GV Gorinchem

112 melding
Vrijdag 6-3-2026 om 12:07
Schuttersgracht, Gorinchem

112 melding
Vrijdag 6-3-2026 om 10:39
Molenstraat, 4201CV Gorinchem

112 melding
Vrijdag 6-3-2026 om 09:55
Arkelstraat, 4201KC Gorinchem

Direct een e-mail ontvangen bij nieuwe meldingen in deze regio?

Meld je dan GRATIS aan voor de Oozo Alert service voor Benedenstad

Instellen

Meer nieuws in Benedenstad

Weten hoe eenvoudig het is om af te vallen? Zonder pillen en smeersels en zonder je in het zweet te werken!
Kijk op eenvoudig-afvallen.nl

© 2012 - 2026 OOZO.nl - info@oozo.nl - Gegevens verwijderen? | Disclaimer | Privacy statement