Woning Molenstraat 43 Gorinchem

Molenstraat 43, 4201CV Gorinchem

Ontvang updates voor Benedenstad

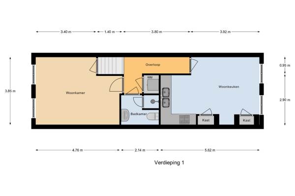
Het adres van deze woning uit 1905 is Molenstraat 43 te Gorinchem. Het pand heeft een oppervlakte van 98m² en heeft 5 kamers kamers waarvan 3 slaapkamers. De geschatte waarde van deze woning is € 315.000.

Bekijk alle woningen in Benedenstad

Gegevens van Bovenwoning (appartement)

Bouwjaar
1905
Geschatte waarde
€ 315.000
Oppervlakte
98 m2
Inhoud
410 m3
Aantal kamers
5 kamers
Slaapkamers
3
Badkamers
1 badkamer
Soort bouw
Bestaande bouw
Eigendomssituatie
Volle eigendom
Ligging
In centrum

Voorzieningen in de buurt

Boodschappen0,1 km
Grote supermarkt0,2 km
Cafetaria0,1 km
Restaurant0,1 km
Huisarts0,6 km
Ziekenhuis1,9 km
Kinderdagverblijf0,3 km
BSO0,3 km
Alle voorzieningen in Benedenstad

Binnenkijken bij Molenstraat 43 te Gorinchem

Meer meldingen in deze omgeving

112 melding
Dinsdag 23-12-2025 om 14:12
Melkstraat, 4201HP Gorinchem

112 melding
Dinsdag 23-12-2025 om 14:11
Paardenwater, 4201KM Gorinchem

112 melding
Dinsdag 23-12-2025 om 11:58
Geniepad, 4201MG Gorinchem

112 melding
Dinsdag 23-12-2025 om 11:30
Buiten De Waterpoort, 4201CR Gorinchem

112 melding
Dinsdag 23-12-2025 om 10:59
Heerenlaantje, 4201HT Gorinchem

112 melding
Dinsdag 23-12-2025 om 08:44
Hoveniersstraat, 4201HS Gorinchem

112 melding
Dinsdag 23-12-2025 om 08:35
Kriekenstraatje, 4201GM Gorinchem

Binnenkijken bij
Dinsdag 23-12-2025
Westwagenstraat 18C, 4201HH Gorinchem

Direct een e-mail ontvangen bij nieuwe meldingen in deze regio?

Meld je dan GRATIS aan voor de Oozo Alert service voor Benedenstad

Instellen

Meer nieuws in Benedenstad

Weten hoe eenvoudig het is om af te vallen? Zonder pillen en smeersels en zonder je in het zweet te werken!
Kijk op eenvoudig-afvallen.nl

© 2012 - 2025 OOZO.nl - info@oozo.nl - Gegevens verwijderen? | Disclaimer | Privacy statement