Woning Revetsteeg 50 Gorinchem

Revetsteeg 50, 4201ER Gorinchem

Ontvang updates voor Benedenstad

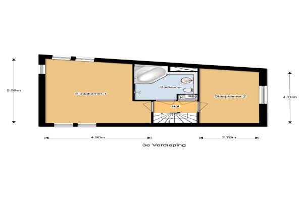
Het adres van deze woning uit 1995 is Revetsteeg 50 te Gorinchem. Het pand heeft een oppervlakte van 140m² en heeft 4 kamers kamers waarvan 3 slaapkamers. De geschatte waarde van deze woning is € 375.000.

Bekijk alle woningen in Benedenstad

Gegevens van Bovenwoning (dubbel bovenhuis)

Bouwjaar
1995
Geschatte waarde
€ 375.000
Oppervlakte
140 m2
Inhoud
400 m3
Aantal kamers
4 kamers
Slaapkamers
3
Badkamers
1 badkamer en 1 apart toilet
Soort bouw
Bestaande bouw
Eigendomssituatie
Volle eigendom
Ligging
In centrum en vrij uitzicht
Tuin
Zonneterras

Voorzieningen in de buurt

Boodschappen0,1 km
Grote supermarkt0,2 km
Cafetaria0,1 km
Restaurant0,1 km
Huisarts0,6 km
Ziekenhuis1,9 km
Kinderdagverblijf0,3 km
BSO0,3 km
Alle voorzieningen in Benedenstad

Binnenkijken bij Revetsteeg 50 te Gorinchem

Meer meldingen in deze omgeving

Binnenkijken bij
Vrijdag 9-1-2026
Langendijk 62A, 4201CJ Gorinchem

112 melding
Donderdag 8-1-2026 om 23:53
Westwagenstraat, 4201HJ Gorinchem

112 melding
Donderdag 8-1-2026 om 16:32
Revetsteeg, 4201ER Gorinchem

Faillissement
Donderdag 8-1-2026
Grote Markt 15, 4201EA GORINCHEM

112 melding
Donderdag 8-1-2026 om 15:39
Eind, 4201CR Gorinchem

112 melding
Donderdag 8-1-2026 om 14:58
Kortendijk, 4201KW Gorinchem

112 melding
Donderdag 8-1-2026 om 14:58
Kortendijk, 4201KW Gorinchem

112 melding
Donderdag 8-1-2026 om 14:56
Smakheul, 4201HG Gorinchem

Direct een e-mail ontvangen bij nieuwe meldingen in deze regio?

Meld je dan GRATIS aan voor de Oozo Alert service voor Benedenstad

Instellen

Meer nieuws in Benedenstad

Weten hoe eenvoudig het is om af te vallen? Zonder pillen en smeersels en zonder je in het zweet te werken!
Kijk op eenvoudig-afvallen.nl

© 2012 - 2026 OOZO.nl - info@oozo.nl - Gegevens verwijderen? | Disclaimer | Privacy statement