Woning Smakheul 8 Gorinchem

Smakheul 8, 4201HG Gorinchem

Ontvang updates voor Benedenstad

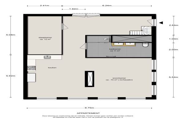
Het adres van deze woning uit 2018 is Smakheul 8 te Gorinchem. Het pand heeft een oppervlakte van 136m² en heeft 3 kamers kamers waarvan 2 slaapkamers. De geschatte waarde van deze woning is € 300.000.

Bekijk alle woningen in Benedenstad

Gegevens van Bovenwoning (appartement)

Bouwjaar
2018
Geschatte waarde
€ 300.000
Oppervlakte
136 m2
Inhoud
453 m3
Aantal kamers
3 kamers
Slaapkamers
2
Badkamers
1 badkamer en 1 apart toilet
Soort bouw
Bestaande bouw
Ligging
In centrum

Voorzieningen in de buurt

Boodschappen0,1 km
Grote supermarkt0,2 km
Cafetaria0,1 km
Restaurant0,1 km
Huisarts0,6 km
Ziekenhuis1,9 km
Kinderdagverblijf0,3 km
BSO0,3 km
Alle voorzieningen in Benedenstad

Binnenkijken bij Smakheul 8 te Gorinchem

Meer meldingen in deze omgeving

112 melding
Zaterdag 7-3-2026 om 11:39
Hoge Torenstraat, 4201GC Gorinchem

112 melding
Zaterdag 7-3-2026 om 01:30
Verlengde Pompstraat, 4201GZ Gorinchem

112 melding
Vrijdag 6-3-2026 om 15:22
Buiten de Waterpoort, 4201CS Gorinchem

112 melding
Vrijdag 6-3-2026 om 15:22
Buiten de Waterpoort, 4201CS Gorinchem

112 melding
Vrijdag 6-3-2026 om 14:59
Wilhelminaplein, 4201GV Gorinchem

112 melding
Vrijdag 6-3-2026 om 12:07
Schuttersgracht, Gorinchem

112 melding
Vrijdag 6-3-2026 om 10:39
Molenstraat, 4201CV Gorinchem

112 melding
Vrijdag 6-3-2026 om 09:55
Arkelstraat, 4201KC Gorinchem

Direct een e-mail ontvangen bij nieuwe meldingen in deze regio?

Meld je dan GRATIS aan voor de Oozo Alert service voor Benedenstad

Instellen

Meer nieuws in Benedenstad

Weten hoe eenvoudig het is om af te vallen? Zonder pillen en smeersels en zonder je in het zweet te werken!
Kijk op eenvoudig-afvallen.nl

© 2012 - 2026 OOZO.nl - info@oozo.nl - Gegevens verwijderen? | Disclaimer | Privacy statement