Woning Penthouse Top 9 GOUDA

Penthouse Top 9, 2801GH GOUDA

Ontvang updates voor Nieuwe Markt en omgeving

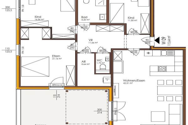
Het adres van deze woning uit 2023 is Penthouse Top 9 te GOUDA. Het pand heeft een oppervlakte van 116m² en een perceeloppervlakte van 200m² en heeft 4 kamers kamers waarvan 3 slaapkamers. De geschatte waarde van deze woning is € 345.000.

Bekijk alle woningen in Nieuwe Markt en omgeving

Gegevens van Penthouse

Bouwjaar
2023
Geschatte waarde
€ 345.000
Oppervlakte
116 m2
Inhoud
290 m3
Aantal kamers
4 kamers
Slaapkamers
3
Tuin
Balkon aanwezig

Voorzieningen in de buurt

Boodschappen0,1 km
Grote supermarkt0,4 km
Cafetaria0,1 km
Restaurant0,1 km
Huisarts0,5 km
Ziekenhuis1,2 km
Kinderdagverblijf0,4 km
BSO0,5 km
Alle voorzieningen in Nieuwe Markt en omgeving

Binnenkijken bij Penthouse Top 9 te GOUDA

Meer meldingen in deze omgeving

112 melding
Woensdag 29-10-2025 om 16:01
Nieuwe-Marktpassage, Gouda

Onroerend goed
Woensdag 29-10-2025
Regentesseplantsoen 47, 2801CM Gouda

112 melding
Dinsdag 28-10-2025 om 15:46
Kleiweg, Gouda

Faillissement
Dinsdag 28-10-2025
Lange Tiendeweg 2, 2801KH Gouda

112 melding
Zondag 26-10-2025 om 15:46
Kleiweg, Gouda

112 melding
Zondag 26-10-2025 om 01:25
Markt, Gouda

112 melding
Zaterdag 25-10-2025 om 21:46
Achter de Kerk, Gouda

112 melding
Zaterdag 25-10-2025 om 10:49
Paradijs, Gouda

Direct een e-mail ontvangen bij nieuwe meldingen in deze regio?

Meld je dan GRATIS aan voor de Oozo Alert service voor Nieuwe Markt en omgeving

Instellen

Meer nieuws in Nieuwe Markt en omgeving

Weten hoe eenvoudig het is om af te vallen? Zonder pillen en smeersels en zonder je in het zweet te werken!
Kijk op eenvoudig-afvallen.nl

© 2012 - 2025 OOZO.nl - info@oozo.nl - Gegevens verwijderen? | Disclaimer | Privacy statement