Woning Paradijs 25 Gouda

Paradijs 25, 2801XR Gouda

Ontvang updates voor Nieuwe Markt en omgeving

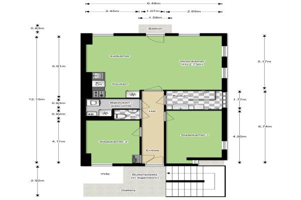
Het adres van deze woning uit 2016 is Paradijs 25 te Gouda. Het pand heeft een oppervlakte van 74m² en heeft 3 kamers kamers waarvan 2 slaapkamers. De geschatte waarde van deze woning is € 225.000.

Bekijk alle woningen in Nieuwe Markt en omgeving

Gegevens van Portiekflat (appartement)

Bouwjaar
2016
Geschatte waarde
€ 225.000
Oppervlakte
74 m2
Inhoud
240 m3
Aantal kamers
3 kamers
Slaapkamers
2
Badkamers
1 badkamer en 1 apart toilet
Soort bouw
Bestaande bouw
Eigendomssituatie
Volle eigendom
Ligging
Aan water, in centrum en vrij uitzicht

Voorzieningen in de buurt

Boodschappen0,1 km
Grote supermarkt0,4 km
Cafetaria0,1 km
Restaurant0,1 km
Huisarts0,5 km
Ziekenhuis1,2 km
Kinderdagverblijf0,4 km
BSO0,5 km
Alle voorzieningen in Nieuwe Markt en omgeving

Binnenkijken bij Paradijs 25 te Gouda

Meer meldingen in deze omgeving

112 melding
Zondag 23-11-2025 om 10:22
Houtmansgracht, Gouda

112 melding
Zondag 23-11-2025 om 01:39
Markt, Gouda

Binnenkijken bij
Vrijdag 21-11-2025
Nieuwehaven 32, 2801EA Gouda

112 melding
Donderdag 20-11-2025 om 12:44
Kazernestraat, Gouda

112 melding
Donderdag 20-11-2025 om 10:46
Nieuwe Markt, Gouda

112 melding
Woensdag 19-11-2025 om 12:58
Conventstraat, Gouda

112 melding
Woensdag 19-11-2025 om 12:52
Conventstraat, Gouda

Onroerend goed
Woensdag 19-11-2025
Korte Groenendaal 1, 2801JP Gouda

Direct een e-mail ontvangen bij nieuwe meldingen in deze regio?

Meld je dan GRATIS aan voor de Oozo Alert service voor Nieuwe Markt en omgeving

Instellen

Meer nieuws in Nieuwe Markt en omgeving

Weten hoe eenvoudig het is om af te vallen? Zonder pillen en smeersels en zonder je in het zweet te werken!
Kijk op eenvoudig-afvallen.nl

© 2012 - 2025 OOZO.nl - info@oozo.nl - Gegevens verwijderen? | Disclaimer | Privacy statement