Woning Kattensingel 27 Gouda

Kattensingel 27, 2801CB Gouda

Ontvang updates voor Nieuwe Park-Oost

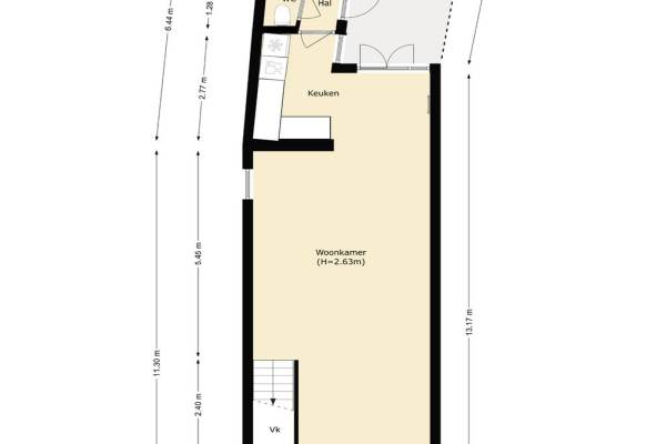
Het adres van deze woning uit 1857 is Kattensingel 27 te Gouda. Het pand heeft een oppervlakte van 144m² en een perceeloppervlakte van 99m² en heeft 5 kamers kamers waarvan 4 slaapkamers. De geschatte waarde van deze woning is € 610.000.

Bekijk alle woningen in Nieuwe Park-Oost

Gegevens van Tussenwoning

Bouwjaar
1857
Geschatte waarde
€ 610.000
Oppervlakte
144 m2
Inhoud
491 m3
Aantal kamers
5 kamers
Slaapkamers
4
Badkamers
1 badkamer en 1 apart toilet
Soort bouw
Bestaande bouw
Eigendomssituatie
Volle eigendom
Ligging
Aan water en vrij uitzicht
Tuin
Tuin
Achtertuin
16 m² (5,7 meter diep en 2,8 meter breed)

Voorzieningen in de buurt

Boodschappen0,6 km
Grote supermarkt0,6 km
Cafetaria0,5 km
Restaurant0,6 km
Huisarts0,4 km
Ziekenhuis1,4 km
Kinderdagverblijf0,4 km
BSO1,0 km
Alle voorzieningen in Nieuwe Park-Oost

Binnenkijken bij Kattensingel 27 te Gouda

Meer meldingen in deze omgeving

112 melding
Zaterdag 20-12-2025 om 03:05
Stationsplein, 2801AK Gouda

Onroerend goed
Zaterdag 20-12-2025
Kattensingel 70, 2801CD Gouda

112 melding
Vrijdag 19-12-2025 om 01:02
Ferdinand Huyckstraat, 2801SV Gouda

112 melding
Woensdag 17-12-2025 om 10:33
Van Bergen IJzendoornpark, Gouda

112 melding
Dinsdag 16-12-2025 om 20:33
Stationsplein, 2801AK Gouda

112 melding
Dinsdag 16-12-2025 om 12:52
Bouwmeesterplein, 2801BX Gouda

112 melding
Dinsdag 16-12-2025 om 07:03
Stationsplein, 2801AK Gouda

112 melding
Dinsdag 16-12-2025 om 06:00
Van Bergen IJzendoornpark, Gouda

Direct een e-mail ontvangen bij nieuwe meldingen in deze regio?

Meld je dan GRATIS aan voor de Oozo Alert service voor Nieuwe Park-Oost

Instellen

Meer nieuws in Nieuwe Park-Oost

Weten hoe eenvoudig het is om af te vallen? Zonder pillen en smeersels en zonder je in het zweet te werken!
Kijk op eenvoudig-afvallen.nl

© 2012 - 2025 OOZO.nl - info@oozo.nl - Gegevens verwijderen? | Disclaimer | Privacy statement