Woning Lange Groenendaal 60 Gouda

Lange Groenendaal 60, 2801LT Gouda

Ontvang updates voor Turfmarkt en omgeving

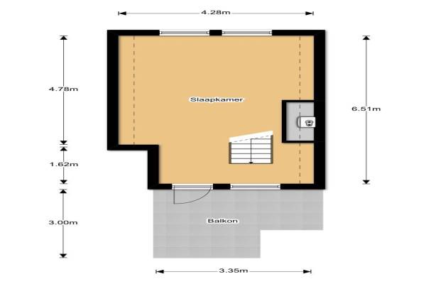
Het adres van deze woning uit 1924 is Lange Groenendaal 60 te Gouda. Het pand heeft een oppervlakte van 60m² en heeft 3 kamers kamers waarvan 1 slaapkamers. De geschatte waarde van deze woning is € 159.000.

Bekijk alle woningen in Turfmarkt en omgeving

Gegevens van Maisonnette (appartement)

Bouwjaar
1924
Geschatte waarde
€ 159.000
Oppervlakte
60 m2
Inhoud
180 m3
Aantal kamers
3 kamers
Slaapkamers
1
Badkamers
1 badkamer
Soort bouw
Bestaande bouw
Eigendomssituatie
Volle eigendom
Ligging
In centrum

Voorzieningen in de buurt

Boodschappen0,1 km
Grote supermarkt0,2 km
Cafetaria0,2 km
Restaurant0,1 km
Huisarts0,4 km
Ziekenhuis1,4 km
Kinderdagverblijf0,3 km
BSO0,3 km
Alle voorzieningen in Turfmarkt en omgeving

Binnenkijken bij Lange Groenendaal 60 te Gouda

Meer meldingen in deze omgeving

Binnenkijken bij
Dinsdag 11-11-2025
Lange Dwarsstraat 7, 2801EH Gouda

Binnenkijken bij
Dinsdag 11-11-2025
Lange Groenendaal 53, 2801LR Gouda

Nieuw bedrijf
November 2025
Lange Dwarsstraat 39, 2801EH Gouda

112 melding
Vrijdag 7-11-2025 om 09:11
Lage Gouwe, Gouda

112 melding
Vrijdag 7-11-2025 om 09:10
Lage Gouwe, Gouda

112 melding
Donderdag 6-11-2025 om 01:22
Turfmarkt, Gouda

Binnenkijken bij
Woensdag 29-10-2025
Arie Kerssensteegje 15, 2801LX Gouda

112 melding
Vrijdag 24-10-2025 om 23:20
Lafeberhof, 2801CZ Gouda

Direct een e-mail ontvangen bij nieuwe meldingen in deze regio?

Meld je dan GRATIS aan voor de Oozo Alert service voor Turfmarkt en omgeving

Instellen

Meer nieuws in Turfmarkt en omgeving

Weten hoe eenvoudig het is om af te vallen? Zonder pillen en smeersels en zonder je in het zweet te werken!
Kijk op eenvoudig-afvallen.nl

© 2012 - 2025 OOZO.nl - info@oozo.nl - Gegevens verwijderen? | Disclaimer | Privacy statement