Woning Jacob Lemairelaan 12 Gouda

Jacob Lemairelaan 12, 2803XD Gouda

Ontvang updates voor Windrooskwartier en Heesterbuurt

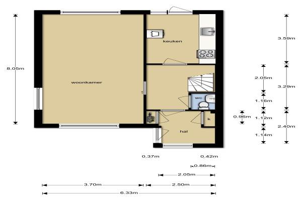
Het adres van deze woning uit 1968 is Jacob Lemairelaan 12 te Gouda. Het pand heeft een oppervlakte van 125m² en een perceeloppervlakte van 288m² en heeft 5 kamers kamers waarvan 4 slaapkamers. De geschatte waarde van deze woning is € 275.000.

Bekijk alle woningen in Windrooskwartier en Heesterbuurt

Gegevens van Eengezinswoning, hoekwoning

Bouwjaar
1968
Geschatte waarde
€ 275.000
Oppervlakte
125 m2
Inhoud
451 m3
Aantal kamers
5 kamers
Slaapkamers
4
Badkamers
1 badkamer en 1 apart toilet
Soort bouw
Bestaande bouw
Eigendomssituatie
Volle eigendom
Ligging
In woonwijk
Tuin
Achtertuin, voortuin en zijtuin
Achtertuin
130 m² (13m diep en 10m breed)

Voorzieningen in de buurt

Boodschappen0,5 km
Grote supermarkt0,5 km
Cafetaria1,1 km
Restaurant0,5 km
Huisarts0,5 km
Ziekenhuis1,1 km
Kinderdagverblijf0,4 km
BSO0,5 km
Alle voorzieningen in Windrooskwartier en Heesterbuurt

Binnenkijken bij Jacob Lemairelaan 12 te Gouda

Meer meldingen in deze omgeving

112 melding
Donderdag 27-11-2025 om 20:22
Jan van Riebeecklaan, Gouda

112 melding
Woensdag 26-11-2025 om 21:42
Mercatorsingel, Gouda

Binnenkijken bij
Vrijdag 21-11-2025
Wilde Wingerdlaan 123, 2803VW Gouda

112 melding
Vrijdag 21-11-2025 om 00:57
Hortensiasingel, Gouda

112 melding
Donderdag 20-11-2025 om 16:38
Willem Barentszlaan, 2803XP Gouda

Binnenkijken bij
Dinsdag 11-11-2025
Joris van Spilbergenlaan 7, 2803EH Gouda

112 melding
Maandag 10-11-2025 om 10:13
Ericalaan, Gouda

112 melding
Zondag 9-11-2025 om 21:42
Olivier van Noortlaan, 2803ED Gouda

Direct een e-mail ontvangen bij nieuwe meldingen in deze regio?

Meld je dan GRATIS aan voor de Oozo Alert service voor Windrooskwartier en Heesterbuurt

Instellen

Meer nieuws in Windrooskwartier en Heesterbuurt

Weten hoe eenvoudig het is om af te vallen? Zonder pillen en smeersels en zonder je in het zweet te werken!
Kijk op eenvoudig-afvallen.nl

© 2012 - 2025 OOZO.nl - info@oozo.nl - Gegevens verwijderen? | Disclaimer | Privacy statement