Woning Mosstraat 27 Gouda

Mosstraat 27, 2802KV Gouda

Ontvang updates voor De Korte Akkeren-Oud

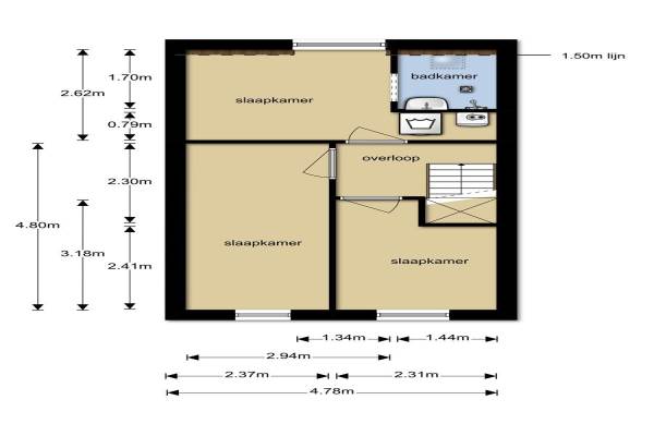
Het adres van deze woning is Mosstraat 27 te Gouda. Het pand heeft een oppervlakte van 69m² en een perceeloppervlakte van 87m² en heeft 4 kamers kamers waarvan 3 slaapkamers. De geschatte waarde van deze woning is € 150.000.

Bekijk alle woningen in De Korte Akkeren-Oud

Gegevens van Eengezinswoning, tussenwoning

Geschatte waarde
€ 150.000
Oppervlakte
69 m2
Inhoud
238 m3
Aantal kamers
4 kamers
Slaapkamers
3
Badkamers
1 badkamer en 1 apart toilet
Soort bouw
Bestaande bouw
Eigendomssituatie
Volle eigendom
Ligging
Aan rustige weg en in woonwijk
Tuin
Achtertuin
Achtertuin
45 m² (9,5m diep en 4,75m breed)

Voorzieningen in de buurt

Boodschappen0,5 km
Grote supermarkt0,4 km
Cafetaria0,4 km
Restaurant0,4 km
Huisarts0,5 km
Ziekenhuis2,1 km
Kinderdagverblijf0,3 km
BSO0,3 km
Alle voorzieningen in De Korte Akkeren-Oud

Binnenkijken bij Mosstraat 27 te Gouda

Meer meldingen in deze omgeving

112 melding
Maandag 20-10-2025 om 13:45
Kievitstraat, Gouda

Binnenkijken bij
Zondag 19-10-2025
Koningin Wilhelminaweg 190, 2802HV Gouda

Binnenkijken bij
Zondag 19-10-2025
Uiverplein 212, 2802GE Gouda

112 melding
Zondag 19-10-2025 om 15:16
Koekoekplein, 2802AD Gouda

112 melding
Vrijdag 17-10-2025 om 14:04
Prins Hendrikstraat, Gouda

112 melding
Vrijdag 17-10-2025 om 13:15
Prins Hendrikstraat, Gouda

112 melding
Vrijdag 17-10-2025 om 12:17
Westerkade, Gouda

Binnenkijken bij
Vrijdag 17-10-2025
Woudstraat 7, 2802KK Gouda

Direct een e-mail ontvangen bij nieuwe meldingen in deze regio?

Meld je dan GRATIS aan voor de Oozo Alert service voor De Korte Akkeren-Oud

Instellen

Meer nieuws in De Korte Akkeren-Oud

Weten hoe eenvoudig het is om af te vallen? Zonder pillen en smeersels en zonder je in het zweet te werken!
Kijk op eenvoudig-afvallen.nl

© 2012 - 2025 OOZO.nl - info@oozo.nl - Gegevens verwijderen? | Disclaimer | Privacy statement