Woning Merlijnstraat 4 Gouda

Merlijnstraat 4, 2805VK Gouda

Ontvang updates voor Achterwillenseweg

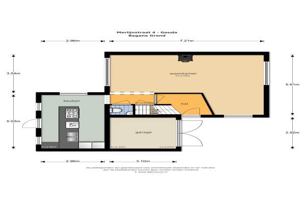
Het adres van deze woning is Merlijnstraat 4 te Gouda. Het pand heeft een oppervlakte van 115m² en een perceeloppervlakte van 200m² en heeft 4 kamers kamers waarvan 3 slaapkamers. De geschatte waarde van deze woning is € 270.000.

Bekijk alle woningen in Achterwillenseweg

Gegevens van Eengezinswoning, 2-onder-1-kapwoning

Geschatte waarde
€ 270.000
Oppervlakte
115 m2
Inhoud
391 m3
Aantal kamers
4 kamers
Slaapkamers
3
Badkamers
2 badkamers en 1 apart toilet
Soort bouw
Bestaande bouw
Eigendomssituatie
Volle eigendom
Ligging
Aan water en in woonwijk
Tuin
Achtertuin
Achtertuin
114 m² (9,5m diep en 12m breed)

Voorzieningen in de buurt

Boodschappen0,8 km
Grote supermarkt0,7 km
Cafetaria0,2 km
Restaurant0,7 km
Huisarts0,6 km
Ziekenhuis1,8 km
Kinderdagverblijf0,8 km
BSO0,7 km
Alle voorzieningen in Achterwillenseweg

Binnenkijken bij Merlijnstraat 4 te Gouda

Meer meldingen in deze omgeving

112 melding
Vrijdag 28-11-2025 om 19:30
Citroenvlinderstraat, 2805KJ Gouda

112 melding
Woensdag 19-11-2025 om 18:49
Koningsmantelstraat, Gouda

Nieuw bedrijf
November 2025
Isoldestraat 8, 2805VH Gouda

112 melding
Woensdag 29-10-2025 om 22:04
Merlijnstraat, Gouda

Nieuw bedrijf
Oktober 2025
Gloriantplantsoen 123, 2805XH Gouda

112 melding
Woensdag 29-10-2025 om 01:58
Gloriantplantsoen, Gouda

112 melding
Maandag 13-10-2025 om 23:31
Merlijnstraat, Gouda

112 melding
Vrijdag 10-10-2025 om 00:04
Reinaertplein, Gouda

Direct een e-mail ontvangen bij nieuwe meldingen in deze regio?

Meld je dan GRATIS aan voor de Oozo Alert service voor Achterwillenseweg

Instellen

Meer nieuws in Achterwillenseweg

Weten hoe eenvoudig het is om af te vallen? Zonder pillen en smeersels en zonder je in het zweet te werken!
Kijk op eenvoudig-afvallen.nl

© 2012 - 2025 OOZO.nl - info@oozo.nl - Gegevens verwijderen? | Disclaimer | Privacy statement