Woning Statensingel 101 Gouda

Statensingel 101, 2805BH Gouda

Ontvang updates voor Statensingel

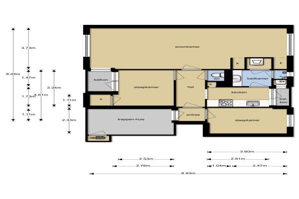
Het adres van deze woning uit 1954 is Statensingel 101 te Gouda. Het pand heeft een oppervlakte van 71m² en heeft 3 kamers kamers waarvan 2 slaapkamers. De geschatte waarde van deze woning is € 285.000.

Bekijk alle woningen in Statensingel

Gegevens van Portiekflat (appartement)

Bouwjaar
1954
Geschatte waarde
€ 285.000
Oppervlakte
71 m2
Inhoud
272 m3
Aantal kamers
3 kamers
Slaapkamers
2
Badkamers
1 badkamer en 1 apart toilet
Soort bouw
Bestaande bouw
Eigendomssituatie
Volle eigendom
Ligging
Aan rustige weg en in woonwijk

Voorzieningen in de buurt

Boodschappen0,2 km
Grote supermarkt0,4 km
Cafetaria0,1 km
Restaurant0,3 km
Huisarts0,3 km
Ziekenhuis0,4 km
Kinderdagverblijf0,4 km
BSO0,4 km
Alle voorzieningen in Statensingel

Binnenkijken bij Statensingel 101 te Gouda

Meer meldingen in deze omgeving

Binnenkijken bij
Woensdag 19-11-2025
Albert Plesmanplein 40, 2805AB Gouda

112 melding
Dinsdag 18-11-2025 om 17:38
Marga Klompépassage, 2805BX Gouda

112 melding
Zondag 16-11-2025 om 10:14
Van Hogendorpplein, 2805BM Gouda

112 melding
Zondag 16-11-2025 om 10:11
Van Hogendorpplein, 2805BM Gouda

112 melding
Dinsdag 11-11-2025 om 08:11
Marga Klompéstraat, Gouda

112 melding
Zondag 9-11-2025 om 20:41
Marga Klompéstraat, Gouda

112 melding
Maandag 3-11-2025 om 10:32
Van Hogendorpplein, 2805BM Gouda

112 melding
Vrijdag 31-10-2025 om 07:40
Marga Klompéstraat, Gouda

Direct een e-mail ontvangen bij nieuwe meldingen in deze regio?

Meld je dan GRATIS aan voor de Oozo Alert service voor Statensingel

Instellen

Meer nieuws in Statensingel

Weten hoe eenvoudig het is om af te vallen? Zonder pillen en smeersels en zonder je in het zweet te werken!
Kijk op eenvoudig-afvallen.nl

© 2012 - 2025 OOZO.nl - info@oozo.nl - Gegevens verwijderen? | Disclaimer | Privacy statement