Woning Veenzoom 81 Gouda

Veenzoom 81, 2804CB Gouda

Ontvang updates voor Zomenbuurt

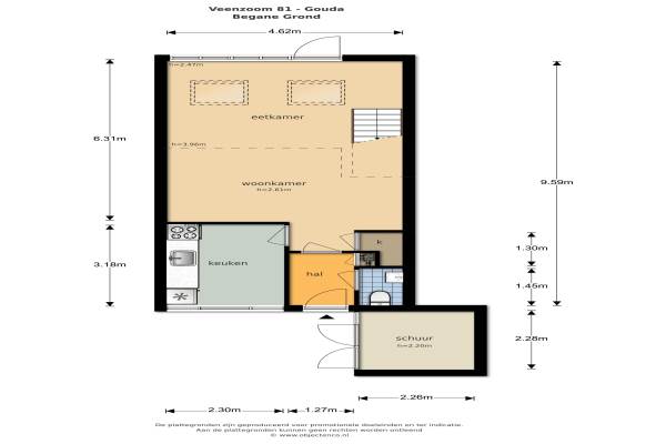
Het adres van deze woning uit 1974 is Veenzoom 81 te Gouda. Het pand heeft een oppervlakte van 72m² en een perceeloppervlakte van 118m² en heeft 3 kamers kamers waarvan 2 slaapkamers. De geschatte waarde van deze woning is € 170.000.

Bekijk alle woningen in Zomenbuurt

Gegevens van Eengezinswoning, tussenwoning

Bouwjaar
1974
Geschatte waarde
€ 170.000
Oppervlakte
72 m2
Inhoud
303 m3
Aantal kamers
3 kamers
Slaapkamers
2
Badkamers
1 apart toilet
Soort bouw
Bestaande bouw
Eigendomssituatie
Volle eigendom
Ligging
In woonwijk
Tuin
Achtertuin
Achtertuin
72 m² (12m diep en 6m breed)

Voorzieningen in de buurt

Boodschappen0,4 km
Grote supermarkt0,5 km
Cafetaria0,4 km
Restaurant0,4 km
Huisarts0,6 km
Ziekenhuis2,0 km
Kinderdagverblijf0,4 km
BSO0,5 km
Alle voorzieningen in Zomenbuurt

Binnenkijken bij Veenzoom 81 te Gouda

Meer meldingen in deze omgeving

Binnenkijken bij
Maandag 9-3-2026
Rietzoom 10, 2804CS Gouda

Binnenkijken bij
Vrijdag 27-2-2026
Albrechtsveld 44, 2804WC Gouda

Nieuw bedrijf
Februari 2026
Albrechtsveld 33, 2804WC Gouda

Nieuw bedrijf
Februari 2026
Boerensloot 14, 2804DA Gouda

112 melding
Woensdag 25-2-2026 om 21:31
Haastenburg, Gouda

112 melding
Woensdag 25-2-2026 om 21:28
Haastenburg, Gouda

112 melding
Zondag 22-2-2026 om 17:04
Veenzoom, Gouda

112 melding
Zaterdag 21-2-2026 om 09:50
Veenzoom, Gouda

Direct een e-mail ontvangen bij nieuwe meldingen in deze regio?

Meld je dan GRATIS aan voor de Oozo Alert service voor Zomenbuurt

Instellen

Meer nieuws in Zomenbuurt

Weten hoe eenvoudig het is om af te vallen? Zonder pillen en smeersels en zonder je in het zweet te werken!
Kijk op eenvoudig-afvallen.nl

© 2012 - 2026 OOZO.nl - info@oozo.nl - Gegevens verwijderen? | Disclaimer | Privacy statement