Woning Beethovenlaan 9e Groningen

Beethovenlaan 9e, 9722KJ Groningen

Ontvang updates voor Coendersborg

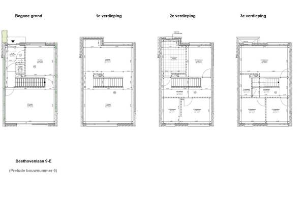
Het adres van deze woning uit 2024 is Beethovenlaan 9e te Groningen. Het pand heeft een oppervlakte van 208m² en een perceeloppervlakte van 126m² en heeft 8 kamers kamers waarvan 6 slaapkamers. De geschatte waarde van deze woning is € 750.000.

Bekijk alle woningen in Coendersborg

Gegevens van Eengezinswoning, tussenwoning

Bouwjaar
2024
Geschatte waarde
€ 750.000
Oppervlakte
208 m2
Inhoud
600 m3
Aantal kamers
8 kamers
Slaapkamers
6
Badkamers
1 badkamer en 1 apart toilet
Soort bouw
Bestaande bouw
Eigendomssituatie
Volle eigendom
Ligging
Aan rustige weg en in woonwijk
Tuin
Achtertuin en voortuin
Achtertuin
36 m² (6 meter diep en 6 meter breed)

Voorzieningen in de buurt

Boodschappen0,4 km
Grote supermarkt0,5 km
Cafetaria0,4 km
Restaurant0,9 km
Huisarts0,7 km
Ziekenhuis2,0 km
Kinderdagverblijf0,4 km
BSO0,5 km
Alle voorzieningen in Coendersborg

Binnenkijken bij Beethovenlaan 9e te Groningen

Meer meldingen in deze omgeving

Binnenkijken bij
Donderdag 11-12-2025
Abraham Kuyperlaan 18, 9722PE Groningen

Binnenkijken bij
Donderdag 4-12-2025
Schubertlaan 1ae, 9722LA Groningen

Nieuw bedrijf
December 2025
Goeman Borgesiuslaan 253, 9722VC Groningen

Binnenkijken bij
Dinsdag 2-12-2025
Helper Brink 69, 9722EM Groningen

Nieuw bedrijf
November 2025
Abraham Kuyperlaan 42, 9722PG Groningen

Binnenkijken bij
Vrijdag 21-11-2025
Helper Brink 61189, 9722EK Groningen

Binnenkijken bij
Vrijdag 21-11-2025
Thorbeckelaan 142, 9722NH Groningen

Binnenkijken bij
Vrijdag 21-11-2025
Helper Brink 61156, 9722EK Groningen

Direct een e-mail ontvangen bij nieuwe meldingen in deze regio?

Meld je dan GRATIS aan voor de Oozo Alert service voor Coendersborg

Instellen

Meer nieuws in Coendersborg

Weten hoe eenvoudig het is om af te vallen? Zonder pillen en smeersels en zonder je in het zweet te werken!
Kijk op eenvoudig-afvallen.nl

© 2012 - 2025 OOZO.nl - info@oozo.nl - Gegevens verwijderen? | Disclaimer | Privacy statement