Woning Bilderdijklaan 63 Groningen

Bilderdijklaan 63, 9721PS Groningen

Ontvang updates voor De Wijert

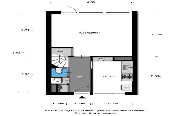
Het adres van deze woning uit 1965 is Bilderdijklaan 63 te Groningen. Het pand heeft een oppervlakte van 79m² en heeft 4 kamers kamers waarvan 3 slaapkamers. De geschatte waarde van deze woning is € 149.500.

Bekijk alle woningen in De Wijert

Gegevens van Maisonnette (appartement)

Bouwjaar
1965
Geschatte waarde
€ 149.500
Oppervlakte
79 m2
Inhoud
279 m3
Aantal kamers
4 kamers
Slaapkamers
3
Badkamers
1 badkamer en 1 apart toilet
Soort bouw
Bestaande bouw
Eigendomssituatie
Volle eigendom
Ligging
Aan park, in woonwijk en vrij uitzicht

Voorzieningen in de buurt

Boodschappen0,4 km
Grote supermarkt0,4 km
Cafetaria0,3 km
Restaurant0,5 km
Huisarts0,8 km
Ziekenhuis1,7 km
Kinderdagverblijf0,3 km
BSO0,4 km
Alle voorzieningen in De Wijert

Binnenkijken bij Bilderdijklaan 63 te Groningen

Meer meldingen in deze omgeving

Binnenkijken bij
Donderdag 15-1-2026
Van Schendelstraat 56, 9721GX Groningen

Binnenkijken bij
Donderdag 15-1-2026
Hora Siccamasingel 115, 9721HC Groningen

Binnenkijken bij
Woensdag 7-1-2026
Van Lenneplaan 387, 9721PM Groningen

Binnenkijken bij
Woensdag 7-1-2026
Multatulistraat 163, 9721NJ Groningen

Onroerend goed
Dinsdag 6-1-2026
P.C. Hooftlaan 2-b, 9721JM Groningen

112 melding
Woensdag 31-12-2025 om 18:28
Camphuysenstraat, Groningen

Binnenkijken bij
Woensdag 31-12-2025
Multatulistraat 127, 9721NH Groningen

Binnenkijken bij
Woensdag 31-12-2025
Vondellaan 394, 9721LR Groningen

Direct een e-mail ontvangen bij nieuwe meldingen in deze regio?

Meld je dan GRATIS aan voor de Oozo Alert service voor De Wijert

Instellen

Meer nieuws in De Wijert

Weten hoe eenvoudig het is om af te vallen? Zonder pillen en smeersels en zonder je in het zweet te werken!
Kijk op eenvoudig-afvallen.nl

© 2012 - 2026 OOZO.nl - info@oozo.nl - Gegevens verwijderen? | Disclaimer | Privacy statement