Woning Smaragdstraat 12 Groningen

Smaragdstraat 12, 9743KV Groningen

Ontvang updates voor Vinkhuizen-Noord

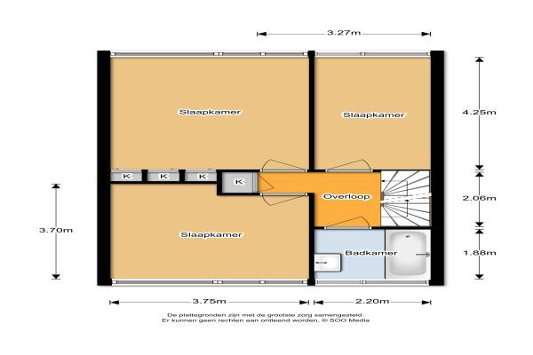
Het adres van deze woning uit 1970 is Smaragdstraat 12 te Groningen. Het pand heeft een oppervlakte van 125m² en een perceeloppervlakte van 194m² en heeft 5 kamers kamers waarvan 4 slaapkamers. De geschatte waarde van deze woning is € 225.000.

Bekijk alle woningen in Vinkhuizen-Noord

Gegevens van Eengezinswoning, tussenwoning

Bouwjaar
1970
Geschatte waarde
€ 225.000
Oppervlakte
125 m2
Inhoud
430 m3
Aantal kamers
5 kamers
Slaapkamers
4
Badkamers
1 badkamer en 1 apart toilet
Soort bouw
Bestaande bouw
Eigendomssituatie
Volle eigendom
Ligging
Aan rustige weg, in woonwijk en vrij uitzicht
Tuin
Achtertuin
Achtertuin
48 m² (8m diep en 6m breed)

Voorzieningen in de buurt

Boodschappen0,6 km
Grote supermarkt0,6 km
Cafetaria0,7 km
Restaurant0,7 km
Huisarts0,7 km
Ziekenhuis4,5 km
Kinderdagverblijf0,5 km
BSO0,5 km
Alle voorzieningen in Vinkhuizen-Noord

Binnenkijken bij Smaragdstraat 12 te Groningen

Meer meldingen in deze omgeving

Binnenkijken bij
Donderdag 22-1-2026
Briljantstraat 23, 9743NA Groningen

Nieuw bedrijf
Januari 2026
Goudlaan 419, 9743CL Groningen

Nieuw bedrijf
Januari 2026
Jaspisstraat 8, 9743JW Groningen

Nieuw bedrijf
Januari 2026
Briljantstraat 5, 9743NA Groningen

Nieuw bedrijf
Januari 2026
Aquamarijnstraat 101, 9743PX Groningen

Binnenkijken bij
Zaterdag 17-1-2026
Kwartsstraat 48, 9743HJ Groningen

112 melding
Maandag 12-1-2026 om 19:48
Barnsteenstraat, Groningen

Binnenkijken bij
Vrijdag 9-1-2026
Jadestraat 33, 9743HA Groningen

Direct een e-mail ontvangen bij nieuwe meldingen in deze regio?

Meld je dan GRATIS aan voor de Oozo Alert service voor Vinkhuizen-Noord

Instellen

Meer nieuws in Vinkhuizen-Noord

Weten hoe eenvoudig het is om af te vallen? Zonder pillen en smeersels en zonder je in het zweet te werken!
Kijk op eenvoudig-afvallen.nl

© 2012 - 2026 OOZO.nl - info@oozo.nl - Gegevens verwijderen? | Disclaimer | Privacy statement