Woning Smaragdstraat 43 Groningen

Smaragdstraat 43, 9743KT Groningen

Ontvang updates voor Vinkhuizen-Noord

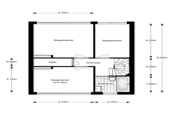
Het adres van deze woning uit 1970 is Smaragdstraat 43 te Groningen. Het pand heeft een oppervlakte van 121m² en een perceeloppervlakte van 117m² en heeft 6 kamers kamers waarvan 4 slaapkamers. De geschatte waarde van deze woning is € 189.500.

Bekijk alle woningen in Vinkhuizen-Noord

Gegevens van Eengezinswoning, tussenwoning

Bouwjaar
1970
Geschatte waarde
€ 189.500
Oppervlakte
121 m2
Inhoud
442 m3
Aantal kamers
6 kamers
Slaapkamers
4
Soort bouw
Bestaande bouw
Ligging
Vrij uitzicht, in woonwijk en aan park
Tuin
Achtertuin en voortuin
Achtertuin
57 m² (9m diep en 6,3m breed)

Voorzieningen in de buurt

Boodschappen0,6 km
Grote supermarkt0,6 km
Cafetaria0,7 km
Restaurant0,7 km
Huisarts0,7 km
Ziekenhuis4,5 km
Kinderdagverblijf0,5 km
BSO0,5 km
Alle voorzieningen in Vinkhuizen-Noord

Binnenkijken bij Smaragdstraat 43 te Groningen

Meer meldingen in deze omgeving

Binnenkijken bij
Vrijdag 21-11-2025
Topaasstraat 9, 9743LA Groningen

Nieuw bedrijf
November 2025
Saffierstraat 104, 9743LK Groningen

Nieuw bedrijf
November 2025
Opaalstraat 27, 9743HK Groningen

Nieuw bedrijf
November 2025
Barnsteenstraat 62, 9743AW Groningen

Nieuw bedrijf
November 2025
Turkooisstraat 1, 9743KX Groningen

Binnenkijken bij
Vrijdag 14-11-2025
Siersteenlaan 371A, 9743ER Groningen

Nieuw bedrijf
November 2025
Robijnstraat 48, 9743KR Groningen

Nieuw bedrijf
November 2025
Amethiststraat 44, 9743KJ Groningen

Direct een e-mail ontvangen bij nieuwe meldingen in deze regio?

Meld je dan GRATIS aan voor de Oozo Alert service voor Vinkhuizen-Noord

Instellen

Meer nieuws in Vinkhuizen-Noord

Weten hoe eenvoudig het is om af te vallen? Zonder pillen en smeersels en zonder je in het zweet te werken!
Kijk op eenvoudig-afvallen.nl

© 2012 - 2025 OOZO.nl - info@oozo.nl - Gegevens verwijderen? | Disclaimer | Privacy statement