Woning Topaasstraat 8 Groningen

Topaasstraat 8, 9743LC Groningen

Ontvang updates voor Vinkhuizen-Noord

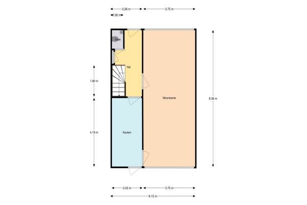
Het adres van deze woning uit 1970 is Topaasstraat 8 te Groningen. Het pand heeft een oppervlakte van 123m² en een perceeloppervlakte van 119m² en heeft 5 kamers kamers waarvan 4 slaapkamers. De geschatte waarde van deze woning is € 164.500.

Bekijk alle woningen in Vinkhuizen-Noord

Gegevens van Eengezinswoning, tussenwoning

Bouwjaar
1970
Geschatte waarde
€ 164.500
Oppervlakte
123 m2
Inhoud
405 m3
Aantal kamers
5 kamers
Slaapkamers
4
Badkamers
1 badkamer en 1 apart toilet
Soort bouw
Bestaande bouw
Eigendomssituatie
Volle eigendom
Ligging
Aan rustige weg en in woonwijk
Tuin
Achtertuin
Achtertuin
57 m² (9,5m diep en 6m breed)

Voorzieningen in de buurt

Boodschappen0,6 km
Grote supermarkt0,6 km
Cafetaria0,7 km
Restaurant0,7 km
Huisarts0,7 km
Ziekenhuis4,5 km
Kinderdagverblijf0,5 km
BSO0,5 km
Alle voorzieningen in Vinkhuizen-Noord

Binnenkijken bij Topaasstraat 8 te Groningen

Meer meldingen in deze omgeving

Binnenkijken bij
Woensdag 24-12-2025
Siersteenlaan 367G, 9743ER Groningen

112 melding
Dinsdag 23-12-2025 om 01:32
Bloedkoraalstraat, Groningen

112 melding
Zondag 21-12-2025 om 23:54
Aquamarijnstraat, Groningen

Binnenkijken bij
Zaterdag 20-12-2025
Berilstraat 12, 9743HX Groningen

112 melding
Dinsdag 9-12-2025 om 19:52
Edelsteenlaan, Groningen

Binnenkijken bij
Zondag 7-12-2025
Diamantlaan 165, 9743BD Groningen

Binnenkijken bij
Zondag 7-12-2025
Robijnstraat 18B, 9743KR Groningen

Nieuw bedrijf
December 2025
Robijnstraat 12, 9743KR Groningen

Direct een e-mail ontvangen bij nieuwe meldingen in deze regio?

Meld je dan GRATIS aan voor de Oozo Alert service voor Vinkhuizen-Noord

Instellen

Meer nieuws in Vinkhuizen-Noord

Weten hoe eenvoudig het is om af te vallen? Zonder pillen en smeersels en zonder je in het zweet te werken!
Kijk op eenvoudig-afvallen.nl

© 2012 - 2025 OOZO.nl - info@oozo.nl - Gegevens verwijderen? | Disclaimer | Privacy statement