Woning Kluisgat 65 Groningen

Kluisgat 65, 9732EP Groningen

Ontvang updates voor Lewenborg-Zuid

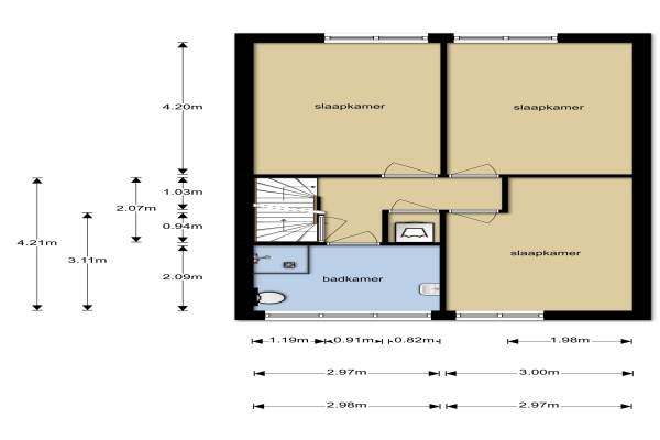
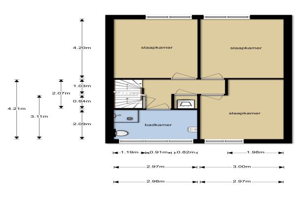
Het adres van deze woning uit 1973 is Kluisgat 65 te Groningen. Het pand heeft 5 kamers kamers waarvan 4 slaapkamers. De geschatte waarde van deze woning is € 200.000.

Bekijk alle woningen in Lewenborg-Zuid

Gegevens van Eengezinswoning, tussenwoning

Bouwjaar
1973
Geschatte waarde
€ 200.000
Oppervlakte
0 m2
Inhoud
505 m3
Aantal kamers
5 kamers
Slaapkamers
4
Badkamers
1 badkamer
Soort bouw
Bestaande bouw
Ligging
Aan rustige weg en in woonwijk
Tuin
Voortuin en achtertuin
Achtertuin
48 m² (8m diep en 6m breed)

Voorzieningen in de buurt

Boodschappen0,7 km
Grote supermarkt0,6 km
Cafetaria0,7 km
Restaurant0,7 km
Huisarts0,8 km
Ziekenhuis4,3 km
Kinderdagverblijf0,4 km
BSO0,5 km
Alle voorzieningen in Lewenborg-Zuid

Binnenkijken bij Kluisgat 65 te Groningen

Meer meldingen in deze omgeving

Binnenkijken bij
Zondag 1-2-2026
Meerpaal 313, 9732AT Groningen

Binnenkijken bij
Vrijdag 30-1-2026
Klinkerstraat 16, 9732ML Groningen

Binnenkijken bij
Donderdag 22-1-2026
Dukdalf 126, 9732BP Groningen

Nieuw bedrijf
Januari 2026
Baken 137, 9732BH Groningen

112 melding
Vrijdag 16-1-2026 om 07:55
Sloep, Groningen

Binnenkijken bij
Zondag 11-1-2026
Meerpaal 125, 9732AH Groningen

112 melding
Woensdag 7-1-2026 om 13:38
Anker, 9732HV Groningen

Binnenkijken bij
Woensdag 7-1-2026
Kluisgat 20, 9732EM Groningen

Direct een e-mail ontvangen bij nieuwe meldingen in deze regio?

Meld je dan GRATIS aan voor de Oozo Alert service voor Lewenborg-Zuid

Instellen

Meer nieuws in Lewenborg-Zuid

Weten hoe eenvoudig het is om af te vallen? Zonder pillen en smeersels en zonder je in het zweet te werken!
Kijk op eenvoudig-afvallen.nl

© 2012 - 2026 OOZO.nl - info@oozo.nl - Gegevens verwijderen? | Disclaimer | Privacy statement