Woning Amkemaheerd 268 Groningen

Amkemaheerd 268, 9736BW Groningen

Ontvang updates voor Beijum-Oost

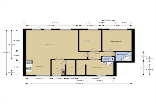
Het adres van deze woning uit 1982 is Amkemaheerd 268 te Groningen. Het pand heeft een oppervlakte van 83m² en heeft 3 kamers kamers waarvan 2 slaapkamers. De geschatte waarde van deze woning is € 272.500.

Bekijk alle woningen in Beijum-Oost

Gegevens van Benedenwoning (appartement)

Bouwjaar
1982
Geschatte waarde
€ 272.500
Oppervlakte
83 m2
Inhoud
285 m3
Aantal kamers
3 kamers
Slaapkamers
2
Badkamers
1 badkamer en 1 apart toilet
Soort bouw
Bestaande bouw
Eigendomssituatie
Volle eigendom
Ligging
Aan rustige weg en in woonwijk
Tuin
Achtertuin en voortuin
Achtertuin
84 m² (7,00 meter diep en 12,00 meter breed)

Voorzieningen in de buurt

Boodschappen1,3 km
Grote supermarkt1,0 km
Cafetaria0,5 km
Restaurant0,7 km
Huisarts0,8 km
Ziekenhuis5,1 km
Kinderdagverblijf0,4 km
BSO0,3 km
Alle voorzieningen in Beijum-Oost

Binnenkijken bij Amkemaheerd 268 te Groningen

Meer meldingen in deze omgeving

Binnenkijken bij
Donderdag 19-2-2026
Wilkemaheerd 62, 9736BN Groningen

Nieuw bedrijf
Februari 2026
Bentismaheerd 112, 9736EG Groningen

Nieuw bedrijf
Februari 2026
Froukemaheerd 57, 9736RD Groningen

112 melding
Woensdag 18-2-2026 om 16:54
Scheltemaheerd, Groningen

Binnenkijken bij
Woensdag 11-2-2026
Galkemaheerd 82, 9736BJ Groningen

Binnenkijken bij
Woensdag 11-2-2026
Wilkemaheerd 56, 9736BN Groningen

112 melding
Donderdag 5-2-2026 om 15:06
Scheltemaheerd, Groningen

112 melding
Donderdag 5-2-2026 om 15:03
Scheltemaheerd, Groningen

Direct een e-mail ontvangen bij nieuwe meldingen in deze regio?

Meld je dan GRATIS aan voor de Oozo Alert service voor Beijum-Oost

Instellen

Meer nieuws in Beijum-Oost

Weten hoe eenvoudig het is om af te vallen? Zonder pillen en smeersels en zonder je in het zweet te werken!
Kijk op eenvoudig-afvallen.nl

© 2012 - 2026 OOZO.nl - info@oozo.nl - Gegevens verwijderen? | Disclaimer | Privacy statement