Woning Huygensstraat 121 Groningen

Huygensstraat 121, 9727JC Groningen

Ontvang updates voor Grunobuurt

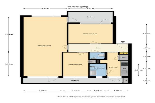
Het adres van deze woning uit 1960 is Huygensstraat 121 te Groningen. Het pand heeft een oppervlakte van 77m² en heeft 3 kamers kamers waarvan 2 slaapkamers. De geschatte waarde van deze woning is € 279.000.

Bekijk alle woningen in Grunobuurt

Gegevens van Portiekflat (appartement)

Bouwjaar
1960
Geschatte waarde
€ 279.000
Oppervlakte
77 m2
Inhoud
258 m3
Aantal kamers
3 kamers
Slaapkamers
2
Badkamers
1 badkamer en 1 apart toilet
Soort bouw
Bestaande bouw
Eigendomssituatie
Volle eigendom
Ligging
In woonwijk

Voorzieningen in de buurt

Boodschappen0,3 km
Grote supermarkt0,3 km
Cafetaria0,4 km
Restaurant0,2 km
Huisarts0,4 km
Ziekenhuis1,9 km
Kinderdagverblijf0,2 km
BSO0,2 km
Alle voorzieningen in Grunobuurt

Binnenkijken bij Huygensstraat 121 te Groningen

Meer meldingen in deze omgeving

Nieuw bedrijf
Mei 2026
Westinghousestraat 2624, 9727GW Groningen

Nieuw bedrijf
Mei 2026
Westinghousestraat 2857, 9727GW Groningen

Binnenkijken bij
Zondag 10-5-2026
Kamerlingh Onnesstraat 101, 9727HH Groningen

Binnenkijken bij
Vrijdag 8-5-2026
Van Leeuwenhoekstraat 18, 9727JJ Groningen

Binnenkijken bij
Dinsdag 5-5-2026
Van Leeuwenhoekstraat 35, 9727JH Groningen

Binnenkijken bij
Vrijdag 1-5-2026
Parkweg 114A, 9727HC Groningen

Nieuw bedrijf
April 2026
Grunostraat 92, 9727EL Groningen

Nieuw bedrijf
April 2026
Paterswoldseweg 182a, 9727BP Groningen

Direct een e-mail ontvangen bij nieuwe meldingen in deze regio?

Meld je dan GRATIS aan voor de Oozo Alert service voor Grunobuurt

Instellen

Meer nieuws in Grunobuurt

Weten hoe eenvoudig het is om af te vallen? Zonder pillen en smeersels en zonder je in het zweet te werken!
Kijk op eenvoudig-afvallen.nl

© 2012 - 2026 OOZO.nl - info@oozo.nl - Gegevens verwijderen? | Disclaimer | Privacy statement